





















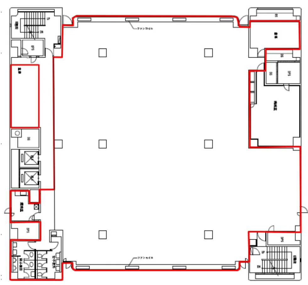
| 階数 | 8 | 内装 | 事務所仕様 |
|---|---|---|---|
| 面積(坪) | 224.42坪 | 面積(㎡) | 741.89㎡ |
| 賃料 | 要問い合わせ | 坪単価 | 要問い合わせ |
| 敷金/保証金 | 敷金12ヶ月 | 礼金 | - |
| 入居可能日 | - | 募集状況 | 空室 |
| 収容人数 | - | 会議室 | - |
| テレブース | - | 機械警備 | - |
| 天井高 | 2400 | 床仕様 | OAフロア |
| トイレ | 共用男女別 | 空調 | セントラル |
| 物件名 | 青山サンクレストビル | ||
|---|---|---|---|
| 所在地 | 東京都港区北青山2-13-5 | ||
| 最寄駅 | 外苑前駅 徒歩2分 / 表参道駅 徒歩6分 / 青山一丁目駅 徒歩8分 | ||
| 構造 | - | 規模 | - |
| 竣工 | 1979 | リニューアル | - |