Growth Office
  • 敷金0円の理由
  • オフィス特集
物件検索
ブックマークまとめて問合せ
お問い合わせ24時間365日受付

エリアから探す

東京23区

  • 千代田区
  • 中央区
  • 港区
  • 新宿区
  • 渋谷区
  • 品川区
  • 目黒区
  • 豊島区
  • 台東区
  • 文京区
  • 墨田区
  • 江東区
  • 大田区
  • 世田谷区
  • 中野区
  • 杉並区

人気エリア

  • 六本木・麻布
  • 新橋・虎ノ門・神谷町
  • 赤坂・溜池山王
  • 青山・表参道
  • 大手町・丸の内
  • 神田・秋葉原
  • 八重洲・日本橋・京橋
  • 銀座
  • 恵比寿・代官山
  • 五反田・大崎

都道府県

  • 東京都
  • 神奈川県
  • 埼玉県
  • 千葉県
  • 大阪府
  • 愛知県
  • 福岡県

駅・路線から探す

人気駅

  • 渋谷駅
  • 新宿駅
  • 東京駅
  • 品川駅
  • 六本木駅
  • 表参道駅
  • 恵比寿駅
  • 池袋駅
  • 大手町駅
  • 五反田駅
  • 田町駅
  • 浜松町駅

JR

  • 山手線
  • 中央線
  • 京浜東北線
  • 総武線(快速)
  • 総武線(各停)
  • 埼京線
  • 湘南新宿ライン

東京メトロ

  • 銀座線
  • 丸ノ内線
  • 日比谷線
  • 千代田線
  • 東西線
  • 有楽町線
  • 半蔵門線
  • 南北線
  • 副都心線

都営地下鉄

  • 浅草線
  • 三田線
  • 新宿線
  • 大江戸線

オフィスタイプから探す

  • セットアップ・居抜きオフィス
  • スタートアップオフィス
  • 敷金0円オフィス
  • 敷金減額オフィス
  • スケルトンオフィス
  • 敷金0円の仕組み

坪数から探す

  • 5〜10坪
  • 10〜20坪
  • 20〜30坪
  • 30〜50坪
  • 50〜100坪
  • 100坪以上

検索方法

  • エリアから検索
  • 沿線・駅から検索
  • マップから検索

初期費用を抑えた賃貸オフィス・貸事務所の検索サイト

Growth Officeについて敷金0円とはコラム特集お問い合わせ

株式会社日商保

東京本社東京都港区西新橋1-7-2 虎ノ門髙木ビル3FTEL 03-6206-1669
福岡営業所福岡市中央区大名2-6-50 福岡大名ガーデンシティ8FTEL 092-687-8717
プライバシーポリシー|利用規約

© 2026 Growth Office All Rights Reserved.

大同生命水戸ビルの賃貸オフィス・貸事務所情報|Growth Office
  • ホーム
  • 物件検索
  • エリアから検索
  • 大同生命水戸ビル
大同生命水戸ビル - 1大同生命水戸ビル - 2大同生命水戸ビル - 3大同生命水戸ビル - 4大同生命水戸ビル - 5大同生命水戸ビル - 6大同生命水戸ビル - 7大同生命水戸ビル - 8大同生命水戸ビル - 9大同生命水戸ビル - 10大同生命水戸ビル - 11大同生命水戸ビル - 12大同生命水戸ビル - 13大同生命水戸ビル - 14大同生命水戸ビル - 15
1 / 15
敷金
12ヶ月

大同生命水戸ビル

住所茨城県水戸市桜川1-1-25
最寄駅水戸駅 徒歩2分
竣工年1989年
構造・規模鉄骨鉄筋コンクリート造 / 地下1階地上10階建

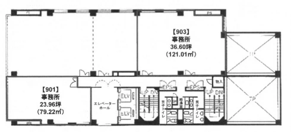
募集区画

最終更新日:2026年2月28日

階数引き渡し状態面積賃料共益費敷金入居可能日
詳細を見る9階引き渡し状態事務所仕様23.96坪
(79.21㎡)
賃料要問合せ共益費相談敷金12ヶ月入居可能日相談

※敷金減額サービスをご利用時はサービス利用料として減額分の5%が年間で別途発生します。

物件所在地

1分で完了!!詳細問い合わせ 内見予約をする