













































1 / 46
区画詳細情報
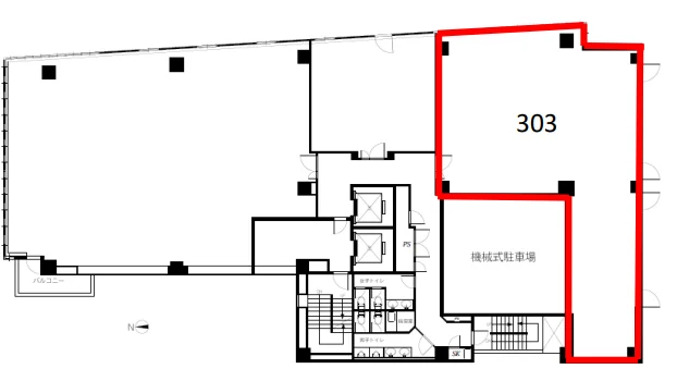
| 階数 | 3 | 内装 | 事務所仕様 |
|---|---|---|---|
| 面積(坪) | 47.93坪 | 面積(㎡) | 158.45㎡ |
| 賃料 | 要問い合わせ | 坪単価 | 要問い合わせ |
| 敷金/保証金 | 12ヶ月0円 | 礼金 | - |
| 入居可能日 | - | 募集状況 | 空室 |
| 収容人数 | - | 会議室 | - |
| テレブース | - | 機械警備 | - |
| 天井高 | 2700 | 床仕様 | OAフロア |
| トイレ | 共用男女別 | 空調 | 個別 |
物件情報
| 物件名 | NORE名駅 | ||
|---|---|---|---|
| 所在地 | 愛知県名古屋市中村区名駅南1-3-18 | ||
| 最寄駅 | 国際センター駅 徒歩6分 / 伏見駅 徒歩7分 / 名鉄名古屋駅 徒歩8分 | ||
| 構造 | 鉄筋コンクリート造 | 規模 | 地上11階 |
| 竣工 | 2007 | リニューアル | - |
