



































































1 / 68
区画詳細情報
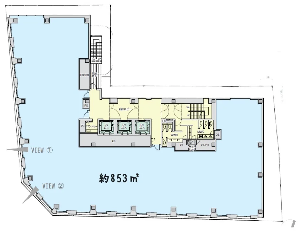
| 階数 | 10 | 内装 | 事務所仕様 |
|---|---|---|---|
| 面積(坪) | 258.37坪 | 面積(㎡) | 854.12㎡ |
| 賃料 | 要問い合わせ | 坪単価 | 要問い合わせ |
| 敷金/保証金 | 12ヶ月 | 礼金 | - |
| 入居可能日 | - | 募集状況 | 空室 |
| 収容人数 | - | 会議室 | - |
| テレブース | - | 機械警備 | - |
| 天井高 | - | 床仕様 | OAフロア |
| トイレ | 専用男女別 | 空調 | 個別 |
物件情報
| 物件名 | NANT仙台南町 | ||
|---|---|---|---|
| 所在地 | 宮城県仙台市青葉区中央3-4-12 | ||
| 最寄駅 | あおば通駅 徒歩5分 / 仙台駅 徒歩8分 | ||
| 構造 | 鉄骨造 | 規模 | 地下1階地上11階建 |
| 竣工 | 2025 | リニューアル | - |






