





| 住所 | 東京都台東区柳橋1-4-5 |
|---|---|
| 最寄駅 | 浅草橋駅 徒歩1分 東日本橋駅 徒歩5分 馬喰横山駅 徒歩6分 |
| 竣工年 | 1990年 |
最終更新日:2026年2月27日
| 階数 | 引き渡し状態 | 面積 | 賃料 | 共益費 | 敷金 | 入居可能日 | ||
|---|---|---|---|---|---|---|---|---|
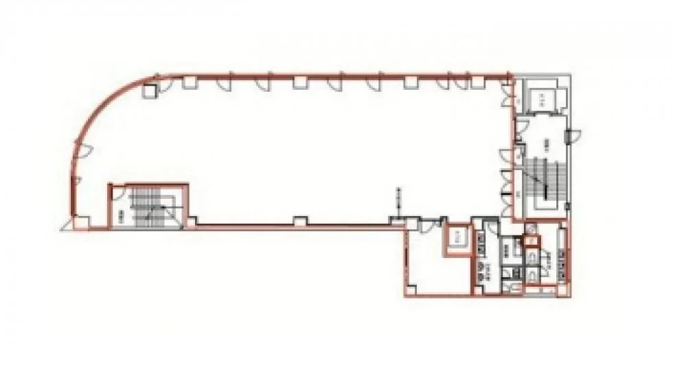
| 詳細を見る | 4階 | 引き渡し状態事務所仕様 | 91.09坪 (301.12㎡) | 賃料要問合せ | 共益費相談 | 敷金8ヶ月 | 入居可能日相談 | |
| 詳細を見る | 5階 | 引き渡し状態事務所仕様 | 92.19坪 (304.76㎡) | 賃料要問合せ | 共益費相談 | 敷金8ヶ月 | 入居可能日相談 | |
| 詳細を見る | 6階 | 引き渡し状態事務所仕様 | 91.89坪 (303.77㎡) | 賃料要問合せ | 共益費相談 | 敷金8ヶ月 | 入居可能日相談 | |
| 詳細を見る | 7階 | 引き渡し状態事務所仕様 | 91.89坪 (303.77㎡) | 賃料要問合せ | 共益費相談 | 敷金8ヶ月 | 入居可能日相談 |
※敷金減額サービスをご利用時はサービス利用料として減額分の5%が年間で別途発生します。