







| 階数 | 2 | 内装 | セットアップ |
|---|---|---|---|
| 面積(坪) | 54.72坪 | 面積(㎡) | 180.89㎡ |
| 賃料 | 要問い合わせ | 坪単価 | 要問い合わせ |
| 敷金/保証金 | 敷金12ヶ月 | 礼金 | - |
| 入居可能日 | - | 募集状況 | 空室 |
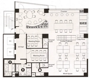
| 収容人数 | - | 会議室 | 2室 |
| テレブース | - | 機械警備 | - |
| 天井高 | 3350 | 床仕様 | OAフロア |
| トイレ | 専用男女別 | 空調 | - |
| 物件名 | Sreed EBISU+L | ||
|---|---|---|---|
| 所在地 | 東京都渋谷区東3-4-15 | ||
| 最寄駅 | 恵比寿駅 徒歩7分 / 代官山駅 徒歩9分 / 広尾駅 徒歩11分 | ||
| 構造 | - | 規模 | - |
| 竣工 | 2025 | リニューアル | - |