この区画は募集終了しています


















オフィスビル外観1 / 19
ATビル
1F
| 面積 | 20.0坪(66.1㎡) |
|---|---|
| 賃料 | ¥580,000 |
| 坪単価 | ¥29,000/坪 |
| 敷金 | 10ヶ月 |
| 内装 | 事務所仕様 |
| 入居可能日 | - |
※敷金減額サービスをご利用時は、賃料の 4〜8%(与信審査により変動)の保証料が年間で別途発生します。
物件ページに戻る区画詳細情報
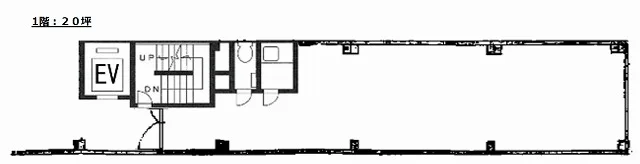
面積・間取り
| 階数 | 1 | 内装 | 事務所仕様 |
|---|---|---|---|
| 面積(坪) | 20.00坪 | 面積(㎡) | 66.12㎡ |
| 天井高 | - | 床仕様 | - |
| 収容人数 | - | 会議室 | - |
賃料・契約条件
| 賃料 | ¥580,000 | 坪単価 | ¥29,000/坪 |
|---|---|---|---|
| 敷金/保証金 | 10ヶ月 | 礼金 | - |
| 入居可能日 | - | 募集状況 | 募集終了(保証なし) |
設備・仕様
| テレブース | - | 機械警備 | - |
|---|---|---|---|
| トイレ | - | 空調 | 個別 |
物件情報
アクセス・所在地
| 物件名 | ATビル | ||
|---|---|---|---|
| 所在地 | 東京都千代田区鍛冶町2-7-3 | ||
| 最寄駅 | 神田駅 徒歩1分 / 新日本橋駅 徒歩4分 / 岩本町駅 徒歩5分 | ||
建物概要
| 構造 | 鉄骨造 | 規模 | 地上5階 |
|---|---|---|---|
| 竣工 | 1981年 | リニューアル | - |