この区画は募集終了しています


オフィスビル外観1 / 3
丸の内ビルディング
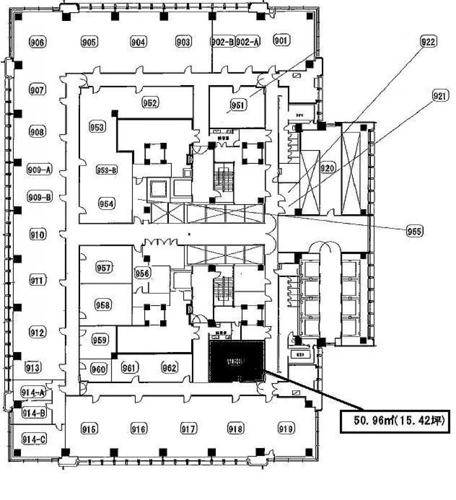
9F
| 面積 | 9.2坪(30.5㎡) |
|---|---|
| 賃料 | 要問い合わせ |
| 坪単価 | 要問い合わせ |
| 敷金 | 相談 |
| 内装 | 事務所仕様 |
| 入居可能日 | 2026/05/01 |
※敷金減額サービスをご利用時は、賃料の 4〜8%(与信審査により変動)の保証料が年間で別途発生します。
物件ページに戻る区画詳細情報
面積・間取り
| 階数 | 9 | 内装 | 事務所仕様 |
|---|---|---|---|
| 面積(坪) | 9.24坪 | 面積(㎡) | 30.54㎡ |
| 天井高 | - | 床仕様 | OAフロア |
| 収容人数 | - | 会議室 | - |
賃料・契約条件
| 賃料 | 要問い合わせ | 坪単価 | 要問い合わせ |
|---|---|---|---|
| 敷金/保証金 | 相談 | 礼金 | なし |
| 入居可能日 | 2026/05/01 | 募集状況 | 募集終了(保証なし) |
設備・仕様
| テレブース | - | 機械警備 | - |
|---|---|---|---|
| トイレ | 男女トイレ別 | 空調 | - |
物件情報
アクセス・所在地
| 物件名 | 丸の内ビルディング | ||
|---|---|---|---|
| 所在地 | 東京都千代田区丸の内2-4-1 | ||
| 最寄駅 | 二重橋前駅 徒歩1分 / 二重橋前(丸の内)駅 徒歩1分 | ||
建物概要
| 構造 | - | 規模 | 地上37階 / 地下4階 |
|---|---|---|---|
| 竣工 | 2002年 | リニューアル | - |
