
| 階数 | 5 | 内装 | セットアップ |
|---|---|---|---|
| 面積(坪) | 22.60坪 | 面積(㎡) | 74.71㎡ |
| 賃料 | 要問い合わせ | 坪単価 | 要問い合わせ |
| 敷金/保証金 | 相談 | 礼金 | 0 |
| 入居可能日 | - | 募集状況 | 空室 |
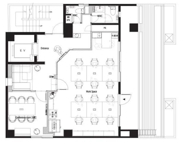
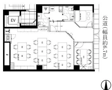
| 収容人数 | - | 会議室 | 1室 |
| テレブース | - | 機械警備 | - |
| 天井高 | - | 床仕様 | OAフロア |
| トイレ | 男女トイレ別 | 空調 | - |
| 物件名 | NOVEL WORK AKIHABARA | ||
|---|---|---|---|
| 所在地 | 東京都千代田区神田佐久間町3-37-4 | ||
| 最寄駅 | 秋葉原駅 徒歩4分 / 岩本町駅 徒歩6分 / 浅草橋駅 徒歩7分 | ||
| 構造 | 鉄筋コンクリート造 | 規模 | 地上6階 |
| 竣工 | 1985 | リニューアル | - |