


































オフィスビル外観1 / 36
区画詳細情報
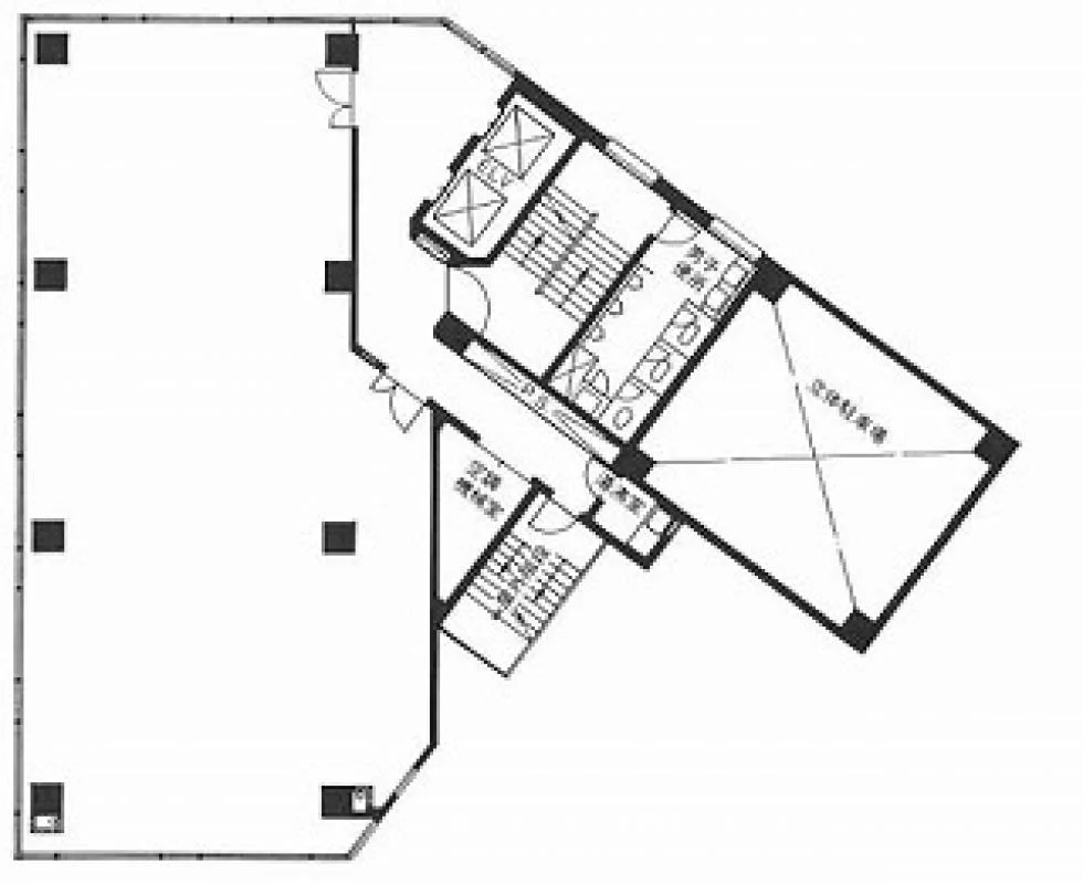
| 階数 | 7 | 内装 | 居抜き |
|---|---|---|---|
| 面積(坪) | 40.22坪 | 面積(㎡) | 132.96㎡ |
| 賃料 | 要問い合わせ | 坪単価 | 要問い合わせ |
| 敷金/保証金 | 6ヶ月 | 礼金 | - |
| 入居可能日 | 即入居 | 募集状況 | 空室 |
| 収容人数 | - | 会議室 | 1室 |
| テレブース | - | 機械警備 | - |
| 天井高 | 2450 | 床仕様 | OAフロア |
| トイレ | 共用男女別 | 空調 | 個別 |
物件情報
| 物件名 | 宮益坂プレイス渋谷 | ||
|---|---|---|---|
| 所在地 | 東京都渋谷区渋谷2-16-5 | ||
| 最寄駅 | 渋谷駅 徒歩7分 / 表参道駅 徒歩7分 / 明治神宮前〈原宿〉駅 徒歩12分 | ||
| 構造 | 鉄骨鉄筋コンクリート造 | 規模 | 地上12階 / 地下1階 |
| 竣工 | 1986 | リニューアル | - |


