




















































オフィスビル外観1 / 54
敷金12ヶ月
いちご赤坂Village
| 住所 | 東京都港区赤坂3-17-1 |
|---|---|
| 最寄駅 | 赤坂見附駅 徒歩2分 赤坂駅 徒歩4分 溜池山王駅 徒歩5分 |
| 竣工年 | 2009年 |
| 構造・規模 | 鉄骨鉄筋コンクリート造 / 地上8階 / 地下1階 |
募集区画
最終更新日:2026年4月26日
| 階数 | 内装 | 面積 | 賃料 | 共益費 | 敷金 | 入居可能日 | ||
|---|---|---|---|---|---|---|---|---|
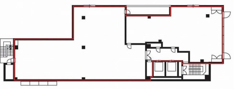
| 詳細を見る | 3階 | 内装事務所仕様 | 90.72坪 (299.9㎡) | 賃料要問合せ | 共益費相談 | 敷金12ヶ月 | 入居可能日相談 |
※敷金減額サービスをご利用時はサービス利用料として減額分の5%が年間で別途発生します。
物件所在地
エリア紹介
赤坂・溜池山王エリアは、日本の政治と経済の中枢を担う、国際色豊かなビジネス拠点として知られています。東京メトロ銀座線、南北線、丸ノ内線、千代田線の4路線が利用可能で、都内の主要ビジネス街への乗り換えなしアクセスが充実している点が大きな魅力です。たとえば、銀座や大手町へはダイレクトアクセスが可能で、通勤の利便性を重視する企業にとって、非常に魅力的なロケーションと言えるでしょう。 このエリアには、アメリカ大使館をはじめとする各国大使館が点在しており、グローバルなビジネス展開を視野に入れる企業に最適な環境です。そのため、外資系企業やコンサルティングファーム、金融機関などが多数進出しており、国際的なビジネスコミュニティが形成されています。赤坂インターシティAIRなどの最新鋭の大型オフィスビルが集積しており、多様なニーズに対応できる賃貸オフィス、貸事務所が豊富に存在します。また、近年では初期費用を抑え、即入居可能なセットアップオフィスも増えており、企業規模や成長段階に合わせて柔軟なオフィス移転が可能です。 賃料水準は都内でも比較的高めに位置しますが、その分、企業のブランドイメージ向上や従業員の満足度向上に繋がるロケーションと言えるでしょう。洗練された街並みや充実した商業施設も魅力の一つで、ビジネスシーンだけでなく、ランチやアフターファイブも充実させることができます。オフィスエリアとしての成熟度が高く、快適なビジネス環境を求める企業にとって、赤坂・溜池山王エリアは、有力な選択肢となるはずです。







