


















オフィスビル外観1 / 20
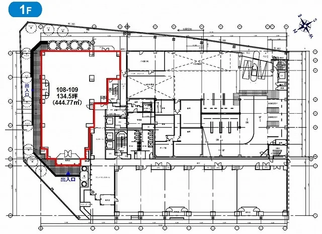
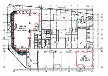
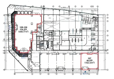
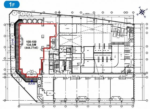
区画詳細情報
| 階数 | 1 | 内装 | 事務所仕様 |
|---|---|---|---|
| 面積(坪) | 134.50坪 | 面積(㎡) | 444.63㎡ |
| 賃料 | 要問い合わせ | 坪単価 | 要問い合わせ |
| 敷金/保証金 | 12ヶ月 | 礼金 | - |
| 入居可能日 | - | 募集状況 | 空室 |
| 収容人数 | - | 会議室 | - |
| テレブース | - | 機械警備 | - |
| 天井高 | 3210 | 床仕様 | OAフロア |
| トイレ | - | 空調 | 個別 |
物件情報
| 物件名 | 新正和ビル | ||
|---|---|---|---|
| 所在地 | 長野県長野市南千歳1-12-7 | ||
| 最寄駅 | 長野駅 徒歩4分 / 市役所前駅 徒歩4分 / 権堂駅 徒歩8分 | ||
| 構造 | 鉄骨鉄筋コンクリート造・鉄骨造 | 規模 | 地下1階地上10階建 |
| 竣工 | 1989 | リニューアル | - |

