


オフィスビル外観1 / 4
区画詳細情報
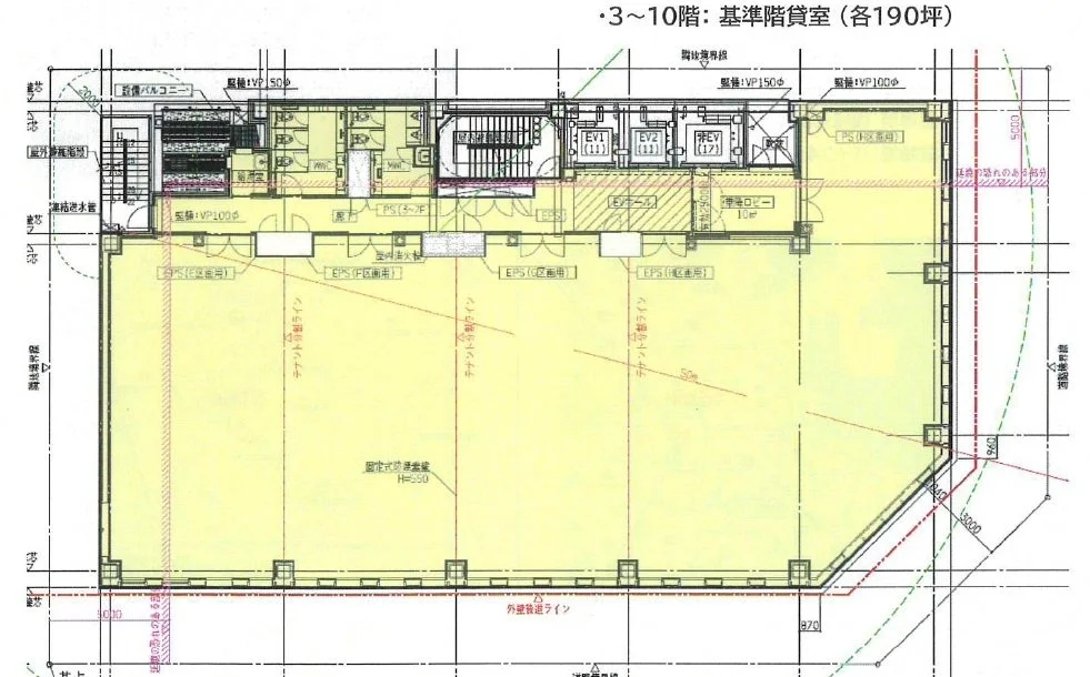
| 階数 | 3 | 内装 | セットアップオフィス |
|---|---|---|---|
| 面積(坪) | 190.86坪 | 面積(㎡) | 630.98㎡ |
| 賃料 | 要問い合わせ | 坪単価 | 要問い合わせ |
| 敷金/保証金 | 12ヶ月 | 礼金 | - |
| 入居可能日 | 2026年4月 | 募集状況 | 空室 |
| 収容人数 | - | 会議室 | 1室 |
| テレブース | - | 機械警備 | - |
| 天井高 | 2700 | 床仕様 | OAフロア |
| トイレ | 男女別 | 空調 | 個別 |
物件情報
| 物件名 | (仮称)S-GATE那覇おもろまち | ||
|---|---|---|---|
| 所在地 | 沖縄県那覇市おもろまち4-3-9 | ||
| 最寄駅 | おもろまち駅 徒歩3分 | ||
| 構造 | 鉄骨造 | 規模 | 地上10階建 |
| 竣工 | 2026 | リニューアル | - |





