





















1 / 22
区画詳細情報
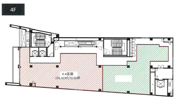
| 階数 | 4 | 内装 | スケルトン |
|---|---|---|---|
| 面積(坪) | 70.00坪 | 面積(㎡) | 231.41㎡ |
| 賃料 | 要問い合わせ | 坪単価 | 要問い合わせ |
| 敷金/保証金 | 12ヶ月0円 | 礼金 | 0 |
| 入居可能日 | - | 募集状況 | 空室 |
| 収容人数 | - | 会議室 | - |
| テレブース | - | 機械警備 | - |
| 天井高 | 3700 | 床仕様 | - |
| トイレ | - | 空調 | 個別 |
物件情報
| 物件名 | BECOME SAKAE | ||
|---|---|---|---|
| 所在地 | 愛知県名古屋市中区栄3-32-6 | ||
| 最寄駅 | 矢場町駅 徒歩2分 / 上前津駅 徒歩7分 / 栄駅 徒歩8分 | ||
| 構造 | 鉄骨造 : 陸屋根 | 規模 | 地上10階 / 地下1階 |
| 竣工 | 2005 | リニューアル | - |