この区画は募集終了しています





























オフィスビル外観1 / 30
尚友会館
5F
| 面積 | 59.8坪(197.8㎡) |
|---|---|
| 賃料 | 要問い合わせ |
| 坪単価 | 要問い合わせ |
| 敷金 | 12ヶ月 |
| 内装 | 事務所仕様 |
| 入居可能日 | - |
※敷金減額サービスをご利用時は、賃料の 4〜8%(与信審査により変動)の保証料が年間で別途発生します。
物件ページに戻る区画詳細情報
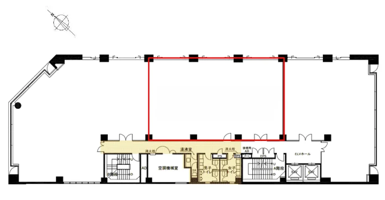
面積・間取り
| 階数 | 5 | 内装 | 事務所仕様 |
|---|---|---|---|
| 面積(坪) | 59.84坪 | 面積(㎡) | 197.82㎡ |
| 天井高 | 2450 | 床仕様 | OAフロア |
| 収容人数 | - | 会議室 | - |
賃料・契約条件
| 賃料 | 要問い合わせ | 坪単価 | 要問い合わせ |
|---|---|---|---|
| 敷金/保証金 | 12ヶ月 | 礼金 | - |
| 入居可能日 | - | 募集状況 | 募集終了(保証なし) |
設備・仕様
| テレブース | - | 機械警備 | - |
|---|---|---|---|
| トイレ | 共用男女別 | 空調 | セントラル |
物件情報
アクセス・所在地
| 物件名 | 尚友会館 | ||
|---|---|---|---|
| 所在地 | 東京都千代田区霞が関3-3-1 | ||
| 最寄駅 | 国会議事堂前駅 徒歩4分 / 虎ノ門駅 徒歩4分 / 霞ケ関駅 徒歩5分 | ||
建物概要
| 構造 | 鉄骨鉄筋コンクリート造 | 規模 | 地上8階 / 地下2階 |
|---|---|---|---|
| 竣工 | 1985年 | リニューアル | - |