








フロア図面1 / 10
区画詳細情報
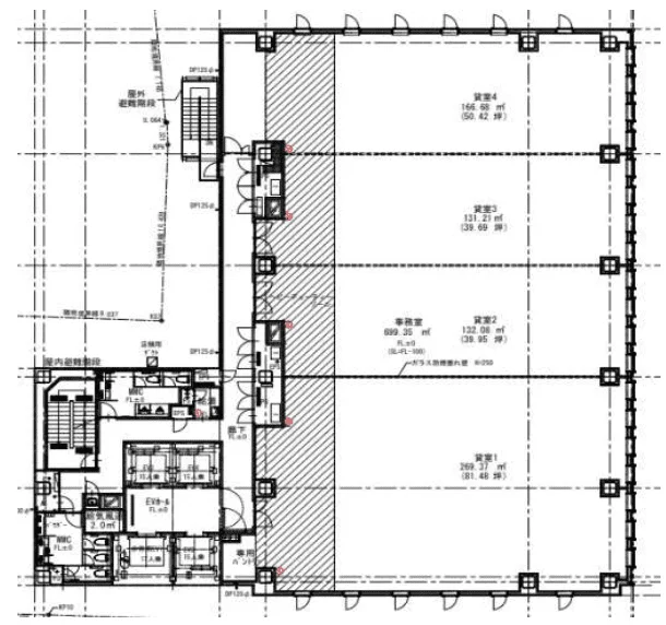
| 階数 | 6 | 内装 | セットアップオフィス |
|---|---|---|---|
| 面積(坪) | 211.55坪 | 面積(㎡) | 699.34㎡ |
| 賃料 | 要問い合わせ | 坪単価 | 要問い合わせ |
| 敷金/保証金 | 12ヶ月 | 礼金 | - |
| 入居可能日 | 2027年4月 | 募集状況 | 空室 |
| 収容人数 | - | 会議室 | 1室 |
| テレブース | - | 機械警備 | - |
| 天井高 | 2700 | 床仕様 | OAフロア |
| トイレ | 男女別 | 空調 | 個別 |
物件情報
| 物件名 | (仮称)S-GATE仙台一番町 | ||
|---|---|---|---|
| 所在地 | 宮城県仙台市青葉区一番町2-3-9 | ||
| 最寄駅 | 青葉通一番町駅 徒歩2分 / 仙台駅 徒歩7分 | ||
| 構造 | 鉄骨造 | 規模 | 地下1階地上12階建 |
| 竣工 | 2027 | リニューアル | - |









