募集区画
最終更新日:2026年4月14日
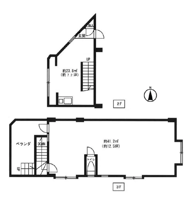
| 階数 | 内装 | 面積 | 賃料 | 共益費 | 敷金 | 入居可能日 | ||
|---|---|---|---|---|---|---|---|---|
| 詳細を見る | 2階 | 内装事務所仕様 | 19.7坪 (65.12㎡) | 賃料要問合せ | 共益費相談 | 敷金4ヶ月 | 入居可能日相談 |
※敷金減額サービスをご利用時はサービス利用料として減額分の5%が年間で別途発生します。
最終更新日:2026年4月14日
| 階数 | 内装 | 面積 | 賃料 | 共益費 | 敷金 | 入居可能日 | ||
|---|---|---|---|---|---|---|---|---|
| 詳細を見る | 2階 | 内装事務所仕様 | 19.7坪 (65.12㎡) | 賃料要問合せ | 共益費相談 | 敷金4ヶ月 | 入居可能日相談 |
※敷金減額サービスをご利用時はサービス利用料として減額分の5%が年間で別途発生します。