





















オフィスビル外観1 / 23
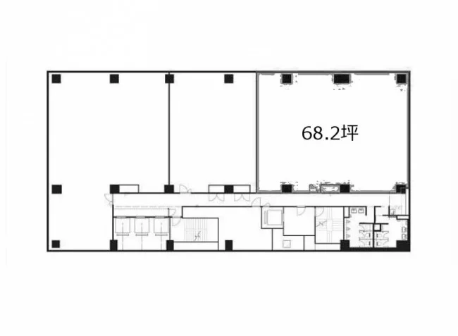
区画詳細情報
| 階数 | 2 | 内装 | 事務所仕様 |
|---|---|---|---|
| 面積(坪) | 68.29坪 | 面積(㎡) | 225.75㎡ |
| 賃料 | ¥1,369,200 | 坪単価 | ¥20,000/坪 |
| 敷金/保証金 | 相談 | 礼金 | - |
| 入居可能日 | - | 募集状況 | 空室 |
| 収容人数 | - | 会議室 | 4室 |
| テレブース | - | 機械警備 | - |
| 天井高 | 2550 | 床仕様 | OAフロア |
| トイレ | 共用男女別 | 空調 | 併用(個別、セントラル) |
物件情報
| 物件名 | ONE SHINKAWA | ||
|---|---|---|---|
| 所在地 | 東京都中央区新川1-23-5 | ||
| 最寄駅 | 茅場町駅 徒歩5分 / 八丁堀駅 徒歩7分 / 水天宮前駅 徒歩9分 | ||
| 構造 | 鉄骨鉄筋コンクリート造 | 規模 | 地上14階 / 地下1階 |
| 竣工 | 1990 | リニューアル | - |




