新大久保駅の小規模オフィスの検索結果
検索結果 20 件 募集中/登録138,648件
building-exteriorシティプラザ新宿










明治通り沿いに建つSRC造地上14階・地下1階の大型複合ビル。1984年8月竣工で、都営大江戸線・東新宿駅から徒歩3分、副都心線・西早稲田駅や新大久保駅なども利用可能。低層階に店舗・オフィス、中高層階に住居を配した構成で、オートロック・防犯カメラ・管理人常駐など充実したセキュリティ体制を備える。周辺には飲食店やドラッグストアも豊富。生活利便性と交通アクセスを両立した物件。
| 階数 | 面積 | 賃料総額 | 坪単価 | 内装 | 敷金 | 入居日 | ||
|---|---|---|---|---|---|---|---|---|
| 2F | 11.6坪(38.2㎡) | 要問合せ | - | 事務所仕様 | 3ヶ月 | 相談 | 詳細を見る |
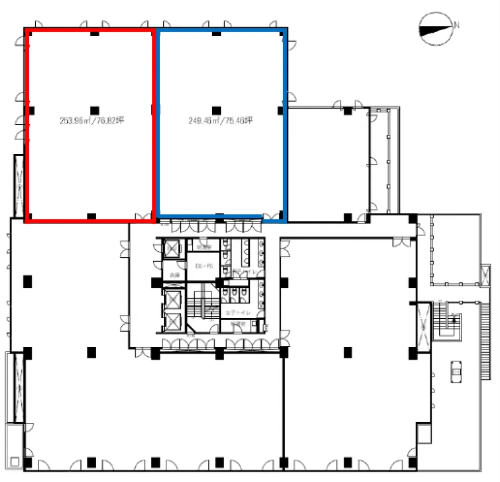
floor-plan朝日新大久保マンション
新大久保駅駅徒歩3分に位置するの地上5階建てオフィスビル。約12.52坪のコンパクトな区画は少人数事務所に最適。敷金2ヶ月で入居可能。
| 階数 | 面積 | 賃料総額 | 坪単価 | 内装 | 敷金 | 入居日 | ||
|---|---|---|---|---|---|---|---|---|
| 2F | 12.5坪(41.4㎡) | 要問合せ | - | 事務所仕様 | 2ヶ月 | 相談 | 詳細を見る |
building-exteriorワコーレ新宿第2ビル










大久保駅駅徒歩3分、新宿西口駅駅徒歩5分に位置するの地上8階 / 地下1階建てオフィスビル。エレベーター1基を完備。約10.59坪のコンパクトな区画は少人数事務所に最適。
| 階数 | 面積 | 賃料総額 | 坪単価 | 内装 | 敷金 | 入居日 | ||
|---|---|---|---|---|---|---|---|---|
| 4F | 10.6坪(35.0㎡) | 要問合せ | - | 事務所仕様 | 4ヶ月 | 相談 | 詳細を見る |
building-exterior新宿酒販会館










大久保駅駅徒歩4分、新大久保駅駅徒歩8分に位置するの地上5階 / 地下1階建てオフィスビル。約11.2坪のコンパクトな区画は少人数事務所に最適。
| 階数 | 面積 | 賃料総額 | 坪単価 | 内装 | 敷金 | 入居日 | ||
|---|---|---|---|---|---|---|---|---|
| 4F | 11.2坪(37.0㎡) | 要問合せ | - | 事務所仕様 | 6ヶ月 | 相談 | 詳細を見る |
building-exteriorコントワール新宿ビル










新大久保駅徒歩8分、東新宿駅徒歩2分の大久保1丁目に位置する地上10階・地下1階建てオフィスビル。個別空調・男女別トイレ・エレベーター2基を完備。約21坪のフロアは少人数オフィスに適した広さ。敷金3ヶ月で入居可能。大江戸線と副都心線の東新宿駅至近です。
| 階数 | 面積 | 賃料総額 | 坪単価 | 内装 | 敷金 | 入居日 | ||
|---|---|---|---|---|---|---|---|---|
| 2F | 21.3坪(70.4㎡) | 要問合せ | - | 事務所仕様 | 3ヶ月 | 相談 | 詳細を見る |
building-exteriorウィンド北新宿ビル












大久保駅徒歩4分、新宿西口駅徒歩7分の北新宿1丁目に位置する地上9階建てオフィスビル。個別空調・エレベーター1基を完備。約35坪のフロアは中小規模オフィスに適した広さ。新宿駅にも近い好立地ながら、北新宿エリアは賃料が抑えめでコストパフォーマンスの良い物件です。
| 階数 | 面積 | 賃料総額 | 坪単価 | 内装 | 敷金 | 入居日 | ||
|---|---|---|---|---|---|---|---|---|
| 3F | 35.1坪(115.9㎡) | 要問合せ | - | 事務所仕様 | 6ヶ月 | 相談 | 詳細を見る |
building-exteriorルーシッドスクエア新宿イースト










東新宿駅駅徒歩1分、新大久保駅駅徒歩8分に位置するの地上8階 / 地下1階建てオフィスビル。エレベーター2基を完備。基準階約152.28坪の大型フロアが特徴。
| 階数 | 面積 | 賃料総額 | 坪単価 | 内装 | 敷金 | 入居日 | ||
|---|---|---|---|---|---|---|---|---|
| 2F | 152.3坪(503.4㎡) | 要問合せ | - | 事務所仕様 | 12ヶ月 | 相談 | 詳細を見る |
building-exterior平安ビル










東新宿駅徒歩2分、新大久保駅徒歩8分の大久保2丁目に位置する地上10階建てオフィスビル。個別空調・エレベーター1基を完備。約20坪のフロアは少人数事務所に使いやすいサイズ。敷金3ヶ月で入居可能。大江戸線・副都心線の東新宿駅至近で、新宿歌舞伎町方面へも徒歩圏内です。
| 階数 | 面積 | 賃料総額 | 坪単価 | 内装 | 敷金 | 入居日 | ||
|---|---|---|---|---|---|---|---|---|
| 6F | 19.6坪(64.6㎡) | 要問合せ | - | 事務所仕様 | 3ヶ月 | 相談 | 詳細を見る |
building-exterior成田ビル








大久保駅駅徒歩1分、西武新宿駅駅徒歩12分に位置するの地上7階 / 地下1階建てオフィスビル。エレベーター1基を完備。約51.43坪のフロアは中規模オフィスに適した広さ。
| 階数 | 面積 | 賃料総額 | 坪単価 | 内装 | 敷金 | 入居日 | ||
|---|---|---|---|---|---|---|---|---|
| 2F | 51.4坪(170.0㎡) | 要問合せ | - | 事務所仕様 | 5ヶ月 | 相談 | 詳細を見る |
building-exterior弘林ビル




大久保駅駅徒歩4分、新大久保駅駅徒歩7分に位置するの地上7階 / 地下1階建てオフィスビル。エレベーター1基を完備。約48.95坪のフロアは中規模オフィスに適した広さ。
| 階数 | 面積 | 賃料総額 | 坪単価 | 内装 | 敷金 | 入居日 | ||
|---|---|---|---|---|---|---|---|---|
| 3F | 49.0坪(161.8㎡) | 要問合せ | - | 事務所仕様 | 6ヶ月 | 2026/06/01 | 詳細を見る |
building-exterior加瀬ビル178












大久保駅駅徒歩4分、新大久保駅駅徒歩7分に位置するの地上9階建てオフィスビル。エレベーター1基を完備。約24.9坪のフロアは少人数から中規模オフィスに対応可能。敷金3ヶ月で入居可能。
| 階数 | 面積 | 賃料総額 | 坪単価 | 内装 | 敷金 | 入居日 | ||
|---|---|---|---|---|---|---|---|---|
| 2F | 24.9坪(82.3㎡) | 要問合せ | - | 事務所仕様 | 3ヶ月 | 相談 | 詳細を見る |
building-exteriorVORT東新宿








東新宿駅徒歩5分、新大久保駅徒歩10分の大久保2丁目に位置する地上11階・地下1階建てオフィスビル。個別空調・男女別トイレ・エレベーター2基を完備。約45坪のフロアは中規模オフィスに適した広さ。敷金5ヶ月で入居可能。VORTシリーズの管理体制です。
| 階数 | 面積 | 賃料総額 | 坪単価 | 内装 | 敷金 | 入居日 | ||
|---|---|---|---|---|---|---|---|---|
| 4F | 44.6坪(147.6㎡) | 要問合せ | - | 事務所仕様 | 5ヶ月 | 2026/06/01 | 詳細を見る |
building-exteriorプランドール新宿





東新宿駅駅徒歩8分、新大久保駅駅徒歩14分に位置するの地上7階建てオフィスビル。エレベーター1基を完備。約10.84坪のコンパクトな区画は少人数事務所に最適。
| 階数 | 面積 | 賃料総額 | 坪単価 | 内装 | 敷金 | 入居日 | ||
|---|---|---|---|---|---|---|---|---|
| 3F | 10.8坪(35.8㎡) | 要問合せ | - | 事務所仕様 | 6ヶ月 | 2026/05 下旬 | 詳細を見る |
building-exterior西新宿プライムスクエア






大久保駅駅徒歩3分、西武新宿駅駅徒歩3分に位置するの地上16階 / 地下2階建てオフィスビル。エレベーター10基を完備。基準階約219.7坪の超大型フロアが特徴。
| 階数 | 面積 | 賃料総額 | 坪単価 | 内装 | 敷金 | 入居日 | ||
|---|---|---|---|---|---|---|---|---|
| 13F | 219.7坪(726.3㎡) | 要問合せ | - | 事務所仕様 | 12ヶ月 | 2026/04/01 | 詳細を見る | |
| 13F | 135.5坪(448.0㎡) | 要問合せ | - | 事務所仕様 | 12ヶ月 | 2026/04/01 | 詳細を見る | |
| 15F | 84.2坪(278.3㎡) | 要問合せ | - | 事務所仕様 | 12ヶ月 | 2026/06/01 | 詳細を見る |
building-exteriorプラザ新大樹(プラザしんおおじゅ)










東新宿駅駅徒歩1分、新大久保駅駅徒歩8分に位置するの地上14階建てオフィスビル。エレベーター1基を完備。約46坪のフロアは中規模オフィスに適した広さ。
| 階数 | 面積 | 賃料総額 | 坪単価 | 内装 | 敷金 | 入居日 | ||
|---|---|---|---|---|---|---|---|---|
| 3F | 22.3坪(73.7㎡) | 要問合せ | - | 事務所仕様 | 6ヶ月 | 2026/07 上旬 | 詳細を見る | |
| 4F | 27.0坪(89.3㎡) | 要問合せ | - | 事務所仕様 | 6ヶ月 | 相談 | 詳細を見る | |
| 4F | 46.0坪(152.1㎡) | 要問合せ | - | 事務所仕様 | 6ヶ月 | 相談 | 詳細を見る | |
| 5F | 17.6坪(58.2㎡) | 要問合せ | - | 事務所仕様 | 6ヶ月 | 相談 | 詳細を見る |
20物件中 1〜20物件を表示