












































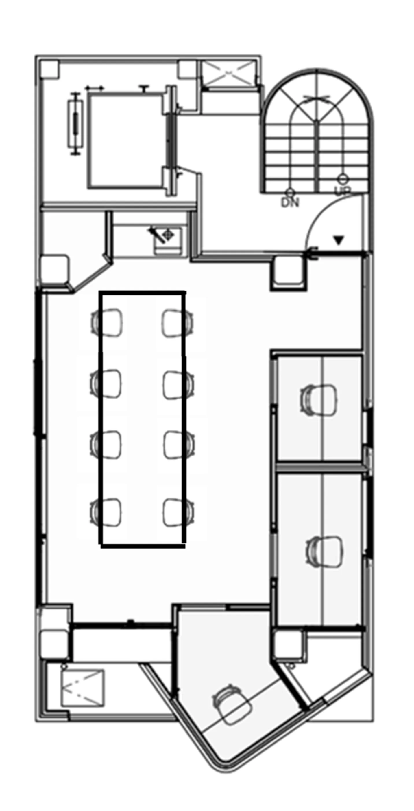
| 階数 | 7 | 内装 | セットアップ |
|---|---|---|---|
| 面積(坪) | 10.36坪 | 面積(㎡) | 34.25㎡ |
| 賃料 | 要問い合わせ | 坪単価 | 要問い合わせ |
| 敷金/保証金 | 6ヶ月0円 | 礼金 | - |
| 入居可能日 | - | 募集状況 | 空室 |
| 収容人数 | - | 会議室 | - |
| テレブース | - | 機械警備 | - |
| 天井高 | 2700 | 床仕様 | - |
| トイレ | 共用男女別 | 空調 | 個別 |
| 物件名 | WOWK芝公園 | ||
|---|---|---|---|
| 所在地 | 東京都港区芝3-13-8 | ||
| 最寄駅 | 赤羽橋駅 徒歩4分 / 三田駅 徒歩7分 / 田町駅 徒歩8分 | ||
| 構造 | 鉄骨造 | 規模 | 地上8階 |
| 竣工 | 2022 | リニューアル | - |