





| 階数 | 5 | 内装 | 事務所仕様 |
|---|---|---|---|
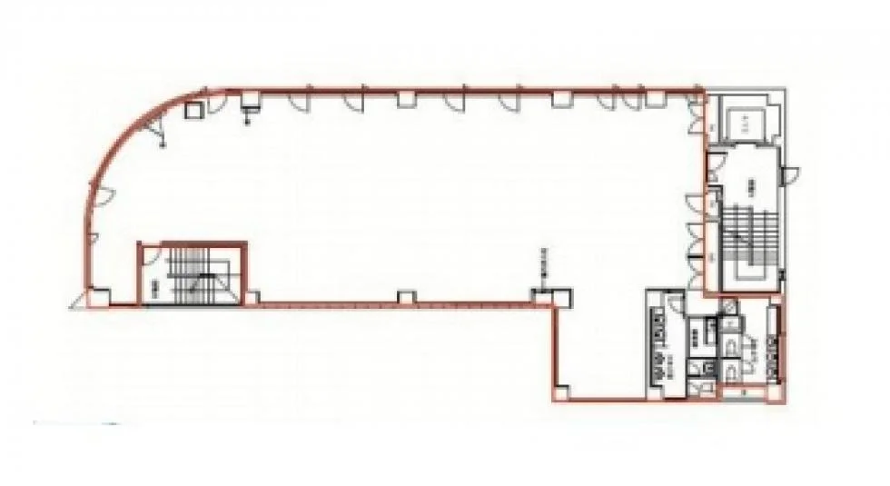
| 面積(坪) | 92.19坪 | 面積(㎡) | 304.76㎡ |
| 賃料 | 要問い合わせ | 坪単価 | 要問い合わせ |
| 敷金/保証金 | 敷金8ヶ月 | 礼金 | 0 |
| 入居可能日 | - | 募集状況 | 空室 |
| 収容人数 | - | 会議室 | - |
| テレブース | - | 機械警備 | - |
| 天井高 | 2400 | 床仕様 | OAフロア |
| トイレ | 共用男女別 | 空調 | 個別 |
| 物件名 | ザ・パークレックス浅草橋 | ||
|---|---|---|---|
| 所在地 | 東京都台東区柳橋1-4-5 | ||
| 最寄駅 | 浅草橋駅 徒歩1分 / 東日本橋駅 徒歩5分 / 馬喰横山駅 徒歩6分 | ||
| 構造 | - | 規模 | 地下1階地上8階建 |
| 竣工 | 1990 | リニューアル | - |