











| 階数 | 4 | 内装 | セットアップ |
|---|---|---|---|
| 面積(坪) | 28.54坪 | 面積(㎡) | 94.35㎡ |
| 賃料 | ¥886,200 | 坪単価 | ¥31,051/坪 |
| 敷金/保証金 | 相談 | 礼金 | 0 |
| 入居可能日 | - | 募集状況 | 空室 |
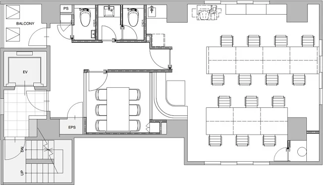
| 収容人数 | - | 会議室 | 1室 |
| テレブース | - | 機械警備 | - |
| 天井高 | 2680 | 床仕様 | OAフロア |
| トイレ | - | 空調 | - |
| 物件名 | Biz Feel 茅場町 | ||
|---|---|---|---|
| 所在地 | 東京都中央区日本橋小網町11-4 | ||
| 最寄駅 | 人形町駅 徒歩5分 / 人形町駅 徒歩6分 / 茅場町駅 徒歩5分 | ||
| 構造 | 鉄筋コンクリート造 | 規模 | 地上10階 |
| 竣工 | 2024 | リニューアル | - |