
フロア図面1 / 2
H¹O赤坂
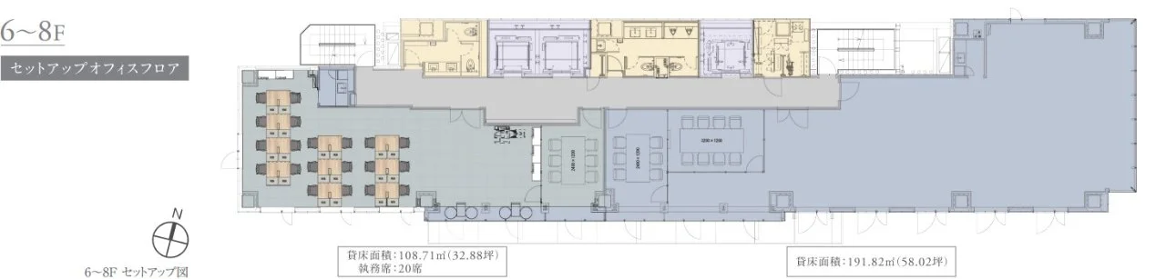
8F
| 面積 | 32.9坪(108.6㎡) |
|---|---|
| 賃料 | 要問い合わせ |
| 坪単価 | 要問い合わせ |
| 敷金 | 相談 |
| 内装 | セットアップオフィス |
| 入居可能日 | - |
※敷金減額サービスをご利用時は、賃料の 4〜8%(与信審査により変動)の保証料が年間で別途発生します。
物件ページに戻る区画詳細情報
面積・間取り
| 階数 | 8 | 内装 | セットアップオフィス |
|---|---|---|---|
| 面積(坪) | 32.85坪 | 面積(㎡) | 108.60㎡ |
| 天井高 | - | 床仕様 | OAフロア |
| 収容人数 | - | 会議室 | - |
賃料・契約条件
| 賃料 | 要問い合わせ | 坪単価 | 要問い合わせ |
|---|---|---|---|
| 敷金/保証金 | 相談 | 礼金 | なし |
| 入居可能日 | - | 募集状況 | 空室 |
設備・仕様
| テレブース | - | 機械警備 | - |
|---|---|---|---|
| トイレ | 男女トイレ別 | 空調 | - |
物件情報
アクセス・所在地
| 物件名 | H¹O赤坂 | ||
|---|---|---|---|
| 所在地 | 東京都港区赤坂3-1703 | ||
| 最寄駅 | 赤坂見附駅 徒歩3分 / 赤坂駅 徒歩5分 / 溜池山王駅 徒歩7分 | ||
建物概要
| 構造 | - | 規模 | 地上13階 |
|---|---|---|---|
| 竣工 | 2025年 | リニューアル | - |


