この区画は募集終了しています





オフィスビル外観1 / 6
銀座PREX East
3F
| 面積 | 150.0坪(496.0㎡) |
|---|---|
| 賃料 | 要問い合わせ |
| 坪単価 | 要問い合わせ |
| 敷金 | 6ヶ月 |
| 内装 | セットアップオフィス |
| 入居可能日 | - |
※敷金減額サービスをご利用時は、賃料の 4〜8%(与信審査により変動)の保証料が年間で別途発生します。
物件ページに戻る区画詳細情報
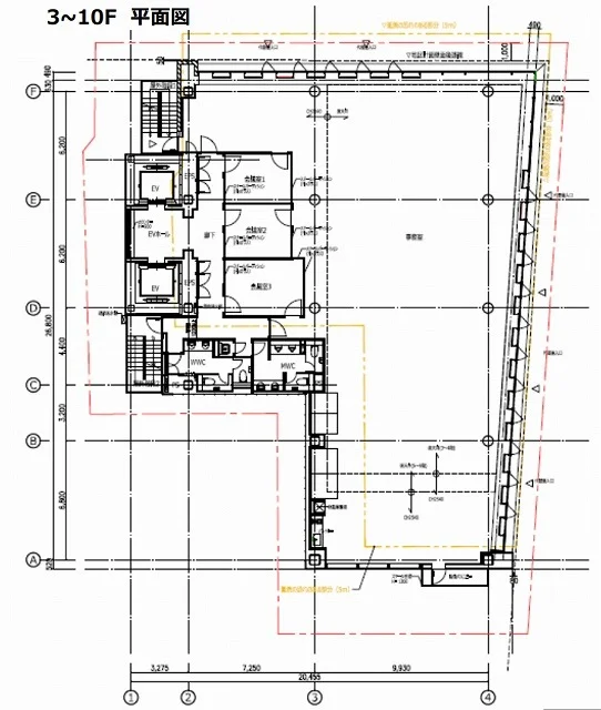
面積・間取り
| 階数 | 3 | 内装 | セットアップオフィス |
|---|---|---|---|
| 面積(坪) | 150.04坪 | 面積(㎡) | 496.00㎡ |
| 天井高 | 2540 | 床仕様 | OAフロア |
| 収容人数 | - | 会議室 | 3室 |
賃料・契約条件
| 賃料 | 要問い合わせ | 坪単価 | 要問い合わせ |
|---|---|---|---|
| 敷金/保証金 | 6ヶ月 | 礼金 | 0 |
| 入居可能日 | - | 募集状況 | 募集終了(保証なし) |
設備・仕様
| テレブース | - | 機械警備 | - |
|---|---|---|---|
| トイレ | - | 空調 | 個別空調 |
物件情報
アクセス・所在地
| 物件名 | 銀座PREX East | ||
|---|---|---|---|
| 所在地 | 東京都中央区築地2-1-4 | ||
| 最寄駅 | 新富町駅 徒歩2分 / 築地駅 徒歩3分 / 東銀座駅 徒歩9分 | ||
建物概要
| 構造 | 鉄骨造 | 規模 | 地上10階 |
|---|---|---|---|
| 竣工 | 2024年 | リニューアル | - |