
オフィスビル外観牛込食糧ビル
| 住所 | 東京都新宿区北山伏町1-11 |
|---|---|
| 最寄駅 | 牛込神楽坂駅 徒歩6分 神楽坂 徒歩10分 |
| 竣工年 | 1991年 |
| 構造・規模 | 鉄筋コンクリート造 / 地上6階 / 地下1階 |
募集区画
最終更新日:2026年4月14日
| 階数 | 内装 | 面積 | 賃料 | 共益費 | 敷金 | 入居可能日 | ||
|---|---|---|---|---|---|---|---|---|
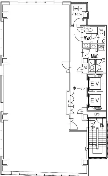
| 詳細を見る | 5階 | 内装事務所仕様 | 101.33坪 (334.98㎡) | 賃料要問合せ | 共益費相談 | 敷金12ヶ月 | 入居可能日相談 |
※敷金減額サービスをご利用時はサービス利用料として減額分の5%が年間で別途発生します。
物件紹介
牛込神楽坂駅徒歩6分の北山伏町に位置する1991年竣工のRC造オフィスビル。地上6階・地下1階建てで、基準階約101坪の大型フロアにOAフロア・エレベーター2基を完備。神楽坂エリアの静かな住宅街に立地し、ワンフロアでまとまった面積を確保したい企業に最適です。
物件所在地
エリア紹介
市ヶ谷・神楽坂・飯田橋エリアは、外濠の豊かな水と緑に囲まれた、落ち着きと品格を兼ね備えたオフィス街です。JR中央総武線、東京メトロ有楽町線・南北線・東西線、都営新宿線・大江戸線など、多岐にわたる路線が利用可能で、都内主要エリアへのアクセスは抜群です。特に飯田橋駅は複数の路線が乗り入れており、都心への移動時間を大幅に短縮できるため、ビジネスの効率化に貢献します。 このエリアは、出版・印刷業界を中心とした企業が古くから集積しており、独自のビジネス文化が育まれてきました。近年ではIT企業やクリエイティブ系の企業も進出し、多様な企業が集まるエリアとして、新たな活気を見せています。 神楽坂の石畳の路地には、伝統と格式を誇る老舗料亭や、個性豊かな飲食店が軒を連ねており、ビジネスランチや大切な接待にも最適な環境です。大通り沿いには、中規模から大規模の賃貸オフィスビルが建ち並び、様々な企業のニーズに対応できる物件が見つかります。 賃料水準は、都心に近接しているためやや高めですが、交通利便性や周辺環境の良さを考慮すると、コストパフォーマンスに優れたエリアと言えるでしょう。近年では、初期費用を抑えられ、すぐに業務を開始できるセットアップオフィスの需要も高まっており、多様な選択肢から貸事務所をお探しいただけます。オフィス移転を検討される企業にとって、市ヶ谷・神楽坂・飯田橋エリアは、ビジネスの成長を力強く後押しする魅力的な選択肢となるはずです。







