



オフィスビル外観1 / 5
敷金6ヶ月
エム・スクエア
| 住所 | 福岡県福岡市西区今宿2-5-4 |
|---|---|
| 最寄駅 | 今宿駅 徒歩7分 九大学研都市駅 徒歩10分 |
| 竣工年 | 1998年 |
| 構造・規模 | 鉄骨造 / 地上2階 |
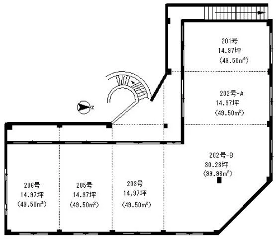
募集区画
最終更新日:2026年4月14日
| 階数 | 内装 | 面積 | 賃料 | 共益費 | 敷金 | 入居可能日 | ||
|---|---|---|---|---|---|---|---|---|
| 詳細を見る | 2階 | 内装事務所仕様 | 14.97坪 (49.49㎡) | 賃料要問合せ | 共益費相談 | 敷金相談 | 入居可能日相談 |
※敷金減額サービスをご利用時はサービス利用料として減額分の5%が年間で別途発生します。




