






1 / 7
敷金
3ヶ月0円
アスティオン白木原
| 住所 | 福岡県大野城市白木原1-1-30 |
|---|---|
| 最寄駅 | 白木原駅 徒歩2分 大野城駅 徒歩5分 春日原駅 徒歩10分 |
| 竣工年 | 2023年 |
| 構造・規模 | 鉄骨造 / 地上3階 |
#敷金0円
募集区画
最終更新日:2026年4月14日
| 階数 | 内装 | 面積 | 賃料 | 共益費 | 敷金 | 入居可能日 | ||
|---|---|---|---|---|---|---|---|---|
| 詳細を見る | 1階 | 内装スケルトン | 12.85坪 (42.48㎡) | 賃料要問合せ | 共益費相談 | 敷金相談 | 入居可能日相談 | |
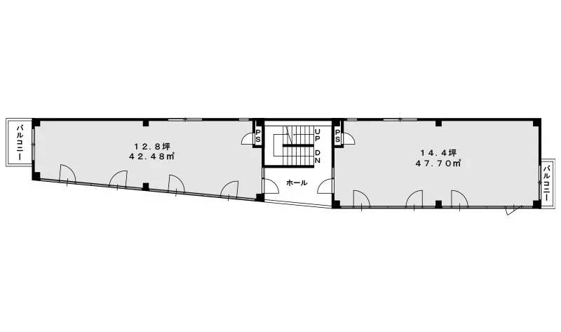
| 詳細を見る | 2階 | 内装事務所仕様 | 12.85坪 (42.48㎡) | 賃料要問合せ | 共益費相談 | 敷金相談 | 入居可能日相談 | |
| 詳細を見る | 2階 | 内装事務所仕様 | 14.43坪 (47.7㎡) | 賃料要問合せ | 共益費相談 | 敷金相談 | 入居可能日相談 | |
| 詳細を見る | 3階 | 内装事務所仕様 | 12.85坪 (42.48㎡) | 賃料要問合せ | 共益費相談 | 敷金相談 | 入居可能日相談 | |
| 詳細を見る | 3階 | 内装事務所仕様 | 14.43坪 (47.7㎡) | 賃料要問合せ | 共益費相談 | 敷金相談 | 入居可能日相談 |
※敷金減額サービスをご利用時はサービス利用料として減額分の5%が年間で別途発生します。
