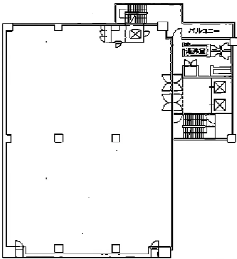
Growth Office
区画詳細情報
| 階数 | 4 | 内装 | 事務所仕様 |
|---|---|---|---|
| 面積(坪) | 159.33坪 | 面積(㎡) | 526.71㎡ |
| 賃料 | 要問い合わせ | 坪単価 | 要問い合わせ |
| 敷金/保証金 | 相談 | 礼金 | - |
| 入居可能日 | - | 募集状況 | 空室 |
| 収容人数 | - | 会議室 | - |
| テレブース | - | 機械警備 | - |
| 天井高 | - | 床仕様 | OAフロア |
| トイレ | 男女トイレ別 | 空調 | - |
物件情報
| 物件名 | 宍倉ビル | ||
|---|---|---|---|
| 所在地 | 東京都江東区木場5-10-11 | ||
| 最寄駅 | 木場駅 徒歩1分 / 東陽町駅 徒歩12分 / 門前仲町駅 徒歩15分 | ||
| 構造 | - | 規模 | 地上8階 / 地下1階 |
| 竣工 | - | リニューアル | - |

