Growth Office
区画詳細情報
| 階数 | 10 | 内装 | 事務所仕様 |
|---|---|---|---|
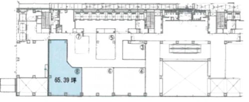
| 面積(坪) | 400.13坪 | 面積(㎡) | 1322.74㎡ |
| 賃料 | 要問い合わせ | 坪単価 | 要問い合わせ |
| 敷金/保証金 | 相談 | 礼金 | なし |
| 入居可能日 | - | 募集状況 | 空室 |
| 収容人数 | - | 会議室 | - |
| テレブース | - | 機械警備 | - |
| 天井高 | - | 床仕様 | OAフロア |
| トイレ | 男女トイレ別 | 空調 | - |
物件情報
| 物件名 | TOC有明 | ||
|---|---|---|---|
| 所在地 | 東京都江東区有明3-5-7 | ||
| 最寄駅 | 国際展示場駅 徒歩3分 / 東京ビッグサイト駅 徒歩4分 | ||
| 構造 | - | 規模 | 地上21階 / 地下1階 |
| 竣工 | - | リニューアル | - |





