






















オフィスビル外観1 / 24
セントラルビル
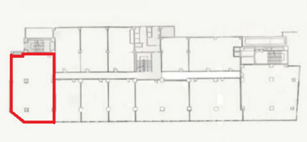
2F
| 面積 | 44.1坪(145.9㎡) |
|---|---|
| 賃料 | 要問い合わせ |
| 坪単価 | 要問い合わせ |
| 敷金 | 相談 |
| 内装 | 事務所仕様 |
| 入居可能日 | - |
※敷金減額サービスをご利用時は、賃料の 4〜8%(与信審査により変動)の保証料が年間で別途発生します。
物件ページに戻る区画詳細情報
面積・間取り
| 階数 | 2 | 内装 | 事務所仕様 |
|---|---|---|---|
| 面積(坪) | 44.14坪 | 面積(㎡) | 145.92㎡ |
| 天井高 | - | 床仕様 | - |
| 収容人数 | - | 会議室 | - |
賃料・契約条件
| 賃料 | 要問い合わせ | 坪単価 | 要問い合わせ |
|---|---|---|---|
| 敷金/保証金 | 相談 | 礼金 | - |
| 入居可能日 | - | 募集状況 | 空室 |
設備・仕様
| テレブース | - | 機械警備 | - |
|---|---|---|---|
| トイレ | - | 空調 | 個別 |
物件情報
アクセス・所在地
| 物件名 | セントラルビル | ||
|---|---|---|---|
| 所在地 | 福岡県福岡市博多区博多駅前4-20-23 | ||
| 最寄駅 | 博多駅 徒歩5分 / 祇園駅 徒歩10分 / 櫛田神社前駅 徒歩10分 | ||
建物概要
| 構造 | 鉄骨鉄筋コンクリート造 | 規模 | 地上10階 / 地下1階 |
|---|---|---|---|
| 竣工 | 1969年 | リニューアル | - |