

1 / 2
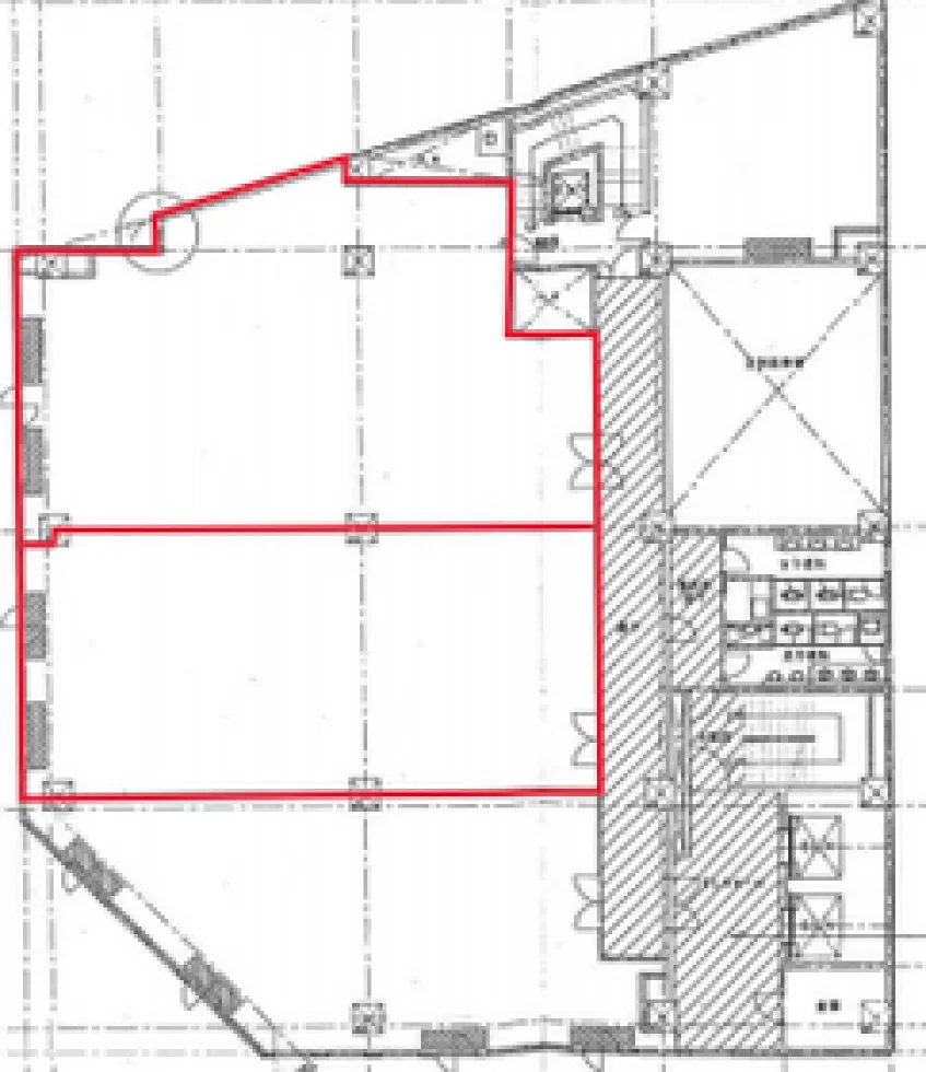
区画詳細情報
| 階数 | 5 | 内装 | 事務所仕様 |
|---|---|---|---|
| 面積(坪) | 51.22坪 | 面積(㎡) | 169.32㎡ |
| 賃料 | ¥717,080 | 坪単価 | ¥14,000/坪 |
| 敷金/保証金 | 6ヶ月 | 礼金 | - |
| 入居可能日 | - | 募集状況 | 空室 |
| 収容人数 | - | 会議室 | - |
| テレブース | - | 機械警備 | - |
| 天井高 | 2350 | 床仕様 | OAフロア |
| トイレ | 共用男女別 | 空調 | 個別 |
物件情報
| 物件名 | 千葉駅前ビル | ||
|---|---|---|---|
| 所在地 | 千葉県千葉市中央区富士見1-1-1 | ||
| 最寄駅 | 栄町駅 徒歩3分 / 千葉駅 徒歩4分 / 京成千葉駅 徒歩4分 | ||
| 構造 | 鉄筋コンクリート造 | 規模 | 地上10階 / 地下2階 |
| 竣工 | 1971 | リニューアル | - |

