募集区画
最終更新日:2026年5月7日
| 階数 | 内装 | 面積 | 賃料 | 共益費 | 敷金 | 入居可能日 | ||
|---|---|---|---|---|---|---|---|---|
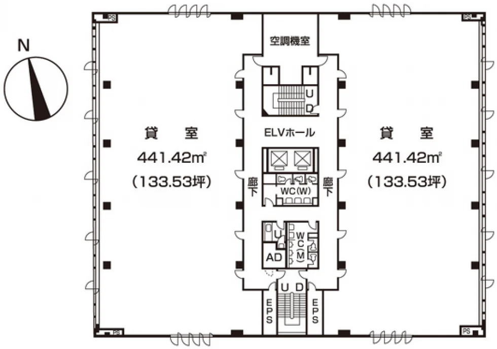
| 詳細を見る | 6階 | 内装事務所仕様 | 30.35坪 (100.33㎡) | 賃料要問合せ | 共益費¥0 | 敷金相談 | 入居可能日相談 |
※敷金減額サービスをご利用時は、賃料の 4〜8%(与信審査により変動)の保証料が年間で別途発生します。
物件所在地
似た条件のオフィス

SK柏ビル
柏駅 徒歩4分
35.3坪
事務所仕様Growth Office
柏セントラルプラザビル
柏 徒歩5分
60.0坪
スケルトンGrowth Office
ISM南柏
南柏 徒歩11分
16.4坪
事務所仕様Growth Office
KOIL BASE
柏の葉キャンパス 徒歩5分
21.2坪
事務所仕様Growth Office
KOIL TERRACE
柏の葉キャンパス 徒歩4分
28.0坪
事務所仕様Growth Office
Crobis柏(クロビスカシワ)
柏 徒歩4分
24.8坪
事務所仕様Growth Office
柏東口金子ビル
柏 徒歩1分
16.9坪
事務所仕様Growth Office
スカイプラザ柏
柏駅 徒歩1分
60.0坪
事務所仕様


























