募集区画
最終更新日:2026年4月14日
| 階数 | 内装 | 面積 | 賃料 | 共益費 | 敷金 | 入居可能日 | ||
|---|---|---|---|---|---|---|---|---|
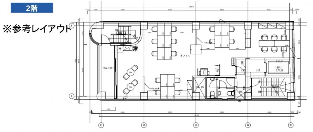
| 詳細を見る | 2階 | 内装事務所仕様 | 30.08坪 (99.45㎡) | 賃料要問合せ | 共益費相談 | 敷金6ヶ月 | 入居可能日相談 |
※敷金減額サービスをご利用時はサービス利用料として減額分の5%が年間で別途発生します。
物件所在地
エリア紹介
日本橋本町・室町エリアは、江戸時代から「くすりの街」として発展を遂げてきた、歴史と伝統が息づくビジネス街です。武田薬品工業、アステラス製薬、第一三共といった、日本を代表する大手製薬企業の本社が集積しており、ライフサイエンス分野における国内屈指の産業拠点として、その存在感を確立しています。 最寄り駅は東京メトロ銀座線および半蔵門線が乗り入れる三越前駅で、都心主要エリアへのアクセスも至便です。駅周辺には、三越本店や重厚な佇まいの三井本館など、長きにわたり人々に愛されてきた老舗商業施設が点在し、格式高い街並みを形成しています。三井グループ関連施設も多く立地し、落ち着いた雰囲気の中でビジネスを展開できるのが魅力です。 このエリアでは、伝統的な企業に加え、近年では先進的な企業も進出しており、オフィス需要は安定しています。そのため、賃貸オフィスや貸事務所の選択肢も豊富で、企業の規模やニーズに合わせたオフィス探しが可能です。近年注目を集めているセットアップオフィスも選択肢の一つに入れることで、オフィス移転にかかる初期費用を抑え、スムーズな事業開始を支援します。 賃料相場は、都心の一等地ということもあり、比較的高めの水準ですが、その利便性と企業イメージ向上効果から、多くの企業がオフィスを構えています。複数の路線が利用可能で、都内主要駅へのアクセスも15分圏内と良好なため、従業員の通勤の便も高く、優秀な人材の確保にも繋がるでしょう。日本橋本町・室町エリアは、歴史と革新が融合した、企業の成長を力強く後押しするオフィスエリアです。











