募集区画
最終更新日:2026年4月14日
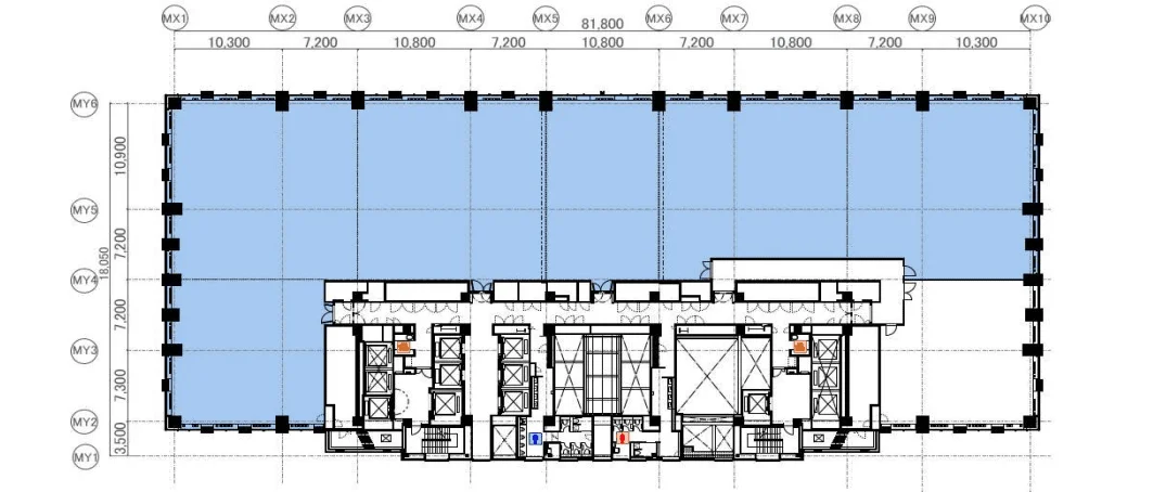
| 階数 | 内装 | 面積 | 賃料 | 共益費 | 敷金 | 入居可能日 | ||
|---|---|---|---|---|---|---|---|---|
| 詳細を見る | 11階 | 内装事務所仕様 | 556坪 (1838.02㎡) | 賃料要問合せ | 共益費相談 | 敷金相談 | 入居可能日2026/08/01 | |
| 詳細を見る | 19階 | 内装事務所仕様 | 627.4坪 (2074.05㎡) | 賃料要問合せ | 共益費相談 | 敷金相談 | 入居可能日2027/02/01 | |
| 詳細を見る | 21階 | 内装事務所仕様 | 542.4坪 (1793.06㎡) | 賃料要問合せ | 共益費相談 | 敷金相談 | 入居可能日2026/09/01 |
※敷金減額サービスをご利用時はサービス利用料として減額分の5%が年間で別途発生します。
物件所在地
エリア紹介
日本経済の中枢を担う大手町・丸の内・有楽町エリアは、日本を代表するメガバンクや総合商社、大手企業の本社が軒を連ねる、まさに日本最大のビジネス街です。約35万人の就業人口を擁し、日々活気に満ち溢れています。 東京駅に直結しているため、JR各線をはじめ、東京メトロ丸ノ内線、千代田線、半蔵門線など、多数の路線が利用可能です。都内各地へのアクセスは非常に容易で、ビジネス展開における機動力を高めます。さらに、地下通路網が発達しており、雨天時でも快適にオフィスビル間を移動できる点も魅力です。 このエリアの賃貸オフィスは、都内最高水準の賃料で推移していますが、そのブランド力と人材確保における優位性から、オフィス移転を検討する企業からの根強い需要があります。近年では、企業の多様なニーズに応えるため、内装や設備があらかじめ整ったセットアップオフィスも増えており、初期費用を抑えつつ、迅速なオフィス開設が可能です。 歴史と伝統を感じさせる重厚なビルが立ち並ぶ一方で、最新の設備を備えた高層ビルも増えており、常に進化を続ける街並みが特徴です。周辺には、洗練されたレストランやカフェ、ショッピング施設も充実しており、働く人々にとって魅力的な環境が整っています。貸事務所をお探しであれば、大手町・丸の内・有楽町エリアは、企業の成長戦略を力強くサポートする最適な選択肢となるでしょう。













