











オフィスビル外観1 / 13
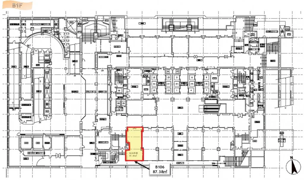
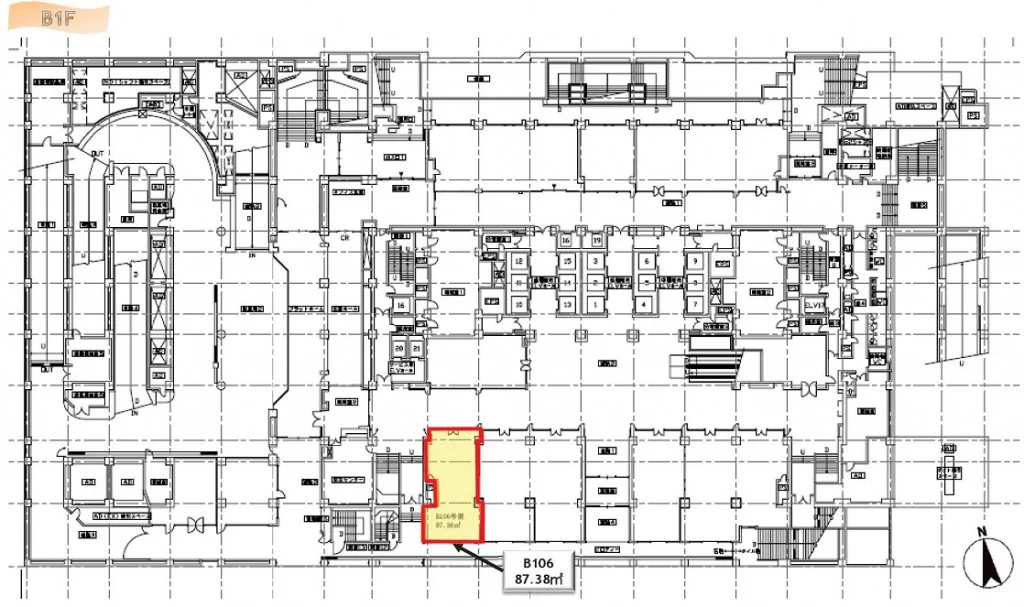
区画詳細情報
| 階数 | B1 | 内装 | 事務所仕様 |
|---|---|---|---|
| 面積(坪) | 26.43坪 | 面積(㎡) | 87.37㎡ |
| 賃料 | 要問い合わせ | 坪単価 | 要問い合わせ |
| 敷金/保証金 | 相談 | 礼金 | 相談 |
| 入居可能日 | - | 募集状況 | 空室 |
| 収容人数 | - | 会議室 | - |
| テレブース | - | 機械警備 | - |
| 天井高 | - | 床仕様 | - |
| トイレ | 男女トイレ別 | 空調 | - |
物件情報
| 物件名 | 富国生命ビル | ||
|---|---|---|---|
| 所在地 | 東京都千代田区内幸町2-2-2 | ||
| 最寄駅 | 内幸町駅 徒歩1分 / 霞ケ関駅 徒歩2分 / 新橋駅 徒歩6分 | ||
| 構造 | - | 規模 | 地上29階 / 地下5階 |
| 竣工 | 1980年 | リニューアル | - |




