








オフィスビル外観1 / 10
区画詳細情報
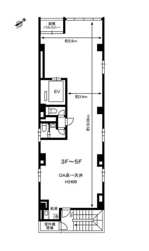
| 階数 | 4 | 内装 | 事務所仕様 |
|---|---|---|---|
| 面積(坪) | 25.48坪 | 面積(㎡) | 84.25㎡ |
| 賃料 | 要問い合わせ | 坪単価 | 要問い合わせ |
| 敷金/保証金 | 6ヶ月 | 礼金 | 1 |
| 入居可能日 | - | 募集状況 | 空室 |
| 収容人数 | - | 会議室 | - |
| テレブース | - | 機械警備 | - |
| 天井高 | - | 床仕様 | OAフロア |
| トイレ | 男女トイレ別 | 空調 | - |
物件情報
| 物件名 | キングビル | ||
|---|---|---|---|
| 所在地 | 東京都渋谷区渋谷2-9-10 | ||
| 最寄駅 | 渋谷駅 徒歩6分 / 表参道駅 徒歩8分 | ||
| 構造 | - | 規模 | 地上10階 |
| 竣工 | 2025年 | リニューアル | - |
