


interior1 / 4
区画詳細情報
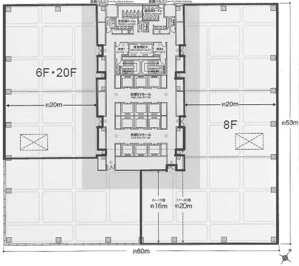
| 階数 | 8 | 内装 | 事務所仕様 |
|---|---|---|---|
| 面積(坪) | 119.87坪 | 面積(㎡) | 396.26㎡ |
| 賃料 | 要問い合わせ | 坪単価 | 要問い合わせ |
| 敷金/保証金 | 12ヶ月 | 礼金 | 0 |
| 入居可能日 | - | 募集状況 | 空室 |
| 収容人数 | - | 会議室 | - |
| テレブース | - | 機械警備 | - |
| 天井高 | - | 床仕様 | OAフロア |
| トイレ | 男女トイレ別 | 空調 | - |
物件情報
| 物件名 | 有明セントラルタワー | ||
|---|---|---|---|
| 所在地 | 東京都江東区有明3-7-18 | ||
| 最寄駅 | 有明駅 徒歩4分 / 国際展示場駅 徒歩5分 / 東京ビッグサイト駅 徒歩4分 | ||
| 構造 | - | 規模 | 地上20階 / 地下1階 |
| 竣工 | 2011年 | リニューアル | - |
同じ物件の他の区画23件

10事務所仕様119.9坪要問合せ
Growth Office
10事務所仕様119.9坪要問合せ

15事務所仕様750.9坪要問合せ
Growth Office
15事務所仕様750.9坪要問合せ

17事務所仕様210.8坪要問合せ

18事務所仕様119.9坪要問合せ

18事務所仕様90.9坪要問合せ

18事務所仕様210.8坪要問合せ
Growth Office
18事務所仕様210.8坪要問合せ
Growth Office
18事務所仕様119.9坪要問合せ
Growth Office
18事務所仕様90.9坪要問合せ
Growth Office
6事務所仕様330.0坪要問合せ

6事務所仕様330.0坪要問合せ

7事務所仕様90.6坪要問合せ

7事務所仕様119.9坪要問合せ
Growth Office
7事務所仕様90.6坪要問合せ
Growth Office
7事務所仕様119.9坪要問合せ
Growth Office
7事務所仕様210.5坪要問合せ
Growth Office
8事務所仕様375.5坪要問合せ

8事務所仕様375.5坪要問合せ
Growth Office
8事務所仕様119.9坪要問合せ

8事務所仕様255.6坪要問合せ
Growth Office
8事務所仕様255.6坪要問合せ