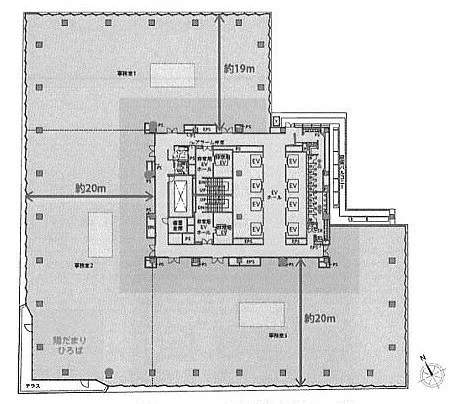
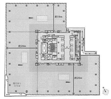
フロア図面1 / 1
区画詳細情報
| 階数 | 12 | 内装 | 事務所仕様 |
|---|---|---|---|
| 面積(坪) | 776.83坪 | 面積(㎡) | 2568.03㎡ |
| 賃料 | 要問い合わせ | 坪単価 | 要問い合わせ |
| 敷金/保証金 | 12ヶ月 | 礼金 | なし |
| 入居可能日 | - | 募集状況 | 空室 |
| 収容人数 | - | 会議室 | - |
| テレブース | - | 機械警備 | - |
| 天井高 | - | 床仕様 | OAフロア |
| トイレ | 男女トイレ別 | 空調 | - |
物件情報
| 物件名 | 渋谷1丁目地区共同開発事業 | ||
|---|---|---|---|
| 所在地 | 東京都渋谷区渋谷1-8-3 | ||
| 最寄駅 | 渋谷駅 徒歩1分 | ||
| 構造 | - | 規模 | 地上14階 / 地下2階 |
| 竣工 | 2027年 | リニューアル | - |


