




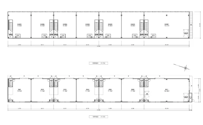
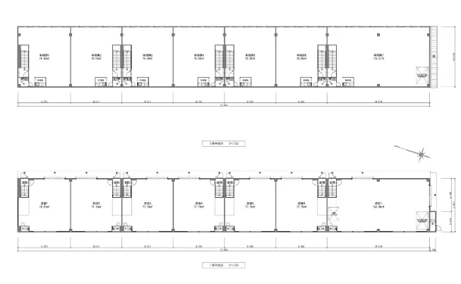
フロア図面1 / 6
FLAGS箱崎公園前
| 住所 | 福岡県福岡市東区原田3-7-55 |
|---|---|
| 最寄駅 | 柚須駅 徒歩12分 箱崎駅 徒歩12分 |
| 竣工年 | 2025年 |
| 構造・規模 | 鉄骨造 / 地上2階 |
募集区画
最終更新日:2026年4月14日
| 階数 | 内装 | 面積 | 賃料 | 共益費 | 敷金 | 入居可能日 | ||
|---|---|---|---|---|---|---|---|---|
| 詳細を見る | 2026-01-02T00:00:00.000Z階 | 内装事務所仕様 | 53.65坪 (177.75㎡) | 賃料¥510,000 (坪9,485円) | 共益費相談 | 敷金相談 | 入居可能日相談 |
※敷金減額サービスをご利用時はサービス利用料として減額分の5%が年間で別途発生します。







