敷金
10ヶ月

(仮称)A*G 門前仲町

住所東京都江東区門前仲町2-4-12
最寄駅門前仲町駅 徒歩2
竣工年2025年

募集区画

最終更新日:2026年5月4日

階数内装面積賃料共益費敷金入居可能日
詳細を見る

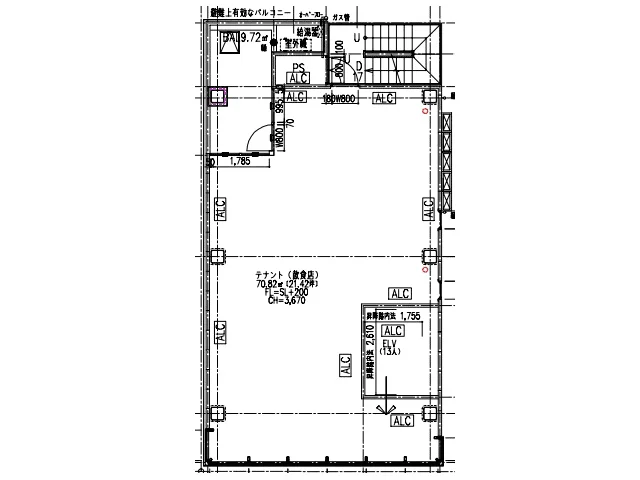
10階

内装事務所仕様21.42
(70.81㎡)
賃料推定¥599,760
(坪28,000円)
共益費相談敷金10ヶ月入居可能日相談
詳細を見る

8階

内装事務所仕様18.41
(60.86㎡)
賃料推定¥515,480
(坪28,000円)
共益費相談敷金10ヶ月入居可能日相談

※敷金減額サービスをご利用時は、賃料の 4〜8%(与信審査により変動)の保証料が年間で別途発生します。

物件所在地

似た条件のオフィス