霞ケ関駅の小規模オフィス一覧
サイトに掲載できない非公開物件が多数ございます。
セットアップ・居抜き・敷金0円など、サイト未掲載の物件もご提案可能です。
検索結果 69 区画 募集中/登録374,683区画
敷金
0円
オフィスビル外観1 / 9









敷金
0円
TORANOGATE(トラノゲート)
住所東京都港区虎ノ門1-4エリア新橋・虎ノ門・神谷町最寄り駅虎ノ門駅 徒歩1分、霞ケ関駅 徒歩4分空き区画10区画
オフィス物件詳細を見る →








| 階数 | 面積 | 賃料総額 | 坪単価 | 内装 | 敷金 | 入居日 | ||
|---|---|---|---|---|---|---|---|---|
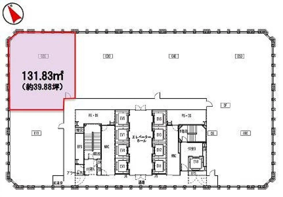
| 9F ② | 130.1坪(430.2㎡) | 要問合せ | - | 事務所仕様 | 0円 | 2027/11/01 | 詳細を見る | |
| 9F ① | 416.7坪(1377.4㎡) | 要問合せ | - | 事務所仕様 | 0円 | 2027/11/01 | 詳細を見る | |
| 10F | 204.7坪(676.6㎡) | 要問合せ | - | 事務所仕様 | 0円 | 2027/11/01 | 詳細を見る | |
| 22F | 854.6坪(2825.0㎡) | 要問合せ | - | 事務所仕様 | 0円 | 2027/11/01 | 詳細を見る | |
| 23F | 854.6坪(2825.0㎡) | 要問合せ | - | 事務所仕様 | 0円 | 2027/11/01 | 詳細を見る | |
| 24F | 854.6坪(2825.0㎡) | 要問合せ | - | 事務所仕様 | 0円 | 2027/11/01 | 詳細を見る | |
| 25F | 896.1坪(2962.4㎡) | 要問合せ | - | 事務所仕様 | 0円 | 2027/11/01 | 詳細を見る | |
| 26F | 894.2坪(2956.0㎡) | 要問合せ | - | 事務所仕様 | 0円 | 2027/11/01 | 詳細を見る | |
| 27F | 896.1坪(2962.4㎡) | 要問合せ | - | 事務所仕様 | 0円 | 2027/11/01 | 詳細を見る | |
| 28F | 894.2坪(2956.0㎡) | 要問合せ | - | 事務所仕様 | 0円 | 2027/11/01 | 詳細を見る |
敷金相談
オフィスビル外観1 / 4




敷金相談
日比谷セントラルビル
セットアップ有
住所東京都港区西新橋1-2-9エリア新橋・虎ノ門・神谷町最寄り駅内幸町駅 徒歩1分、虎ノ門駅 徒歩5分空き区画1区画
オフィス物件詳細を見る →



内幸町駅徒歩1分、虎ノ門駅徒歩5分の西新橋1丁目に位置する地上24階・地下5階建ての超高層オフィスビル。基準階約290坪のフロアにOAフロア・個別空調・男女別トイレ・エレベーター11基を完備。日比谷セントラルビルは三田線の内幸町駅直上で、日比谷公園にも面した一等地のランドマークビルです。
| 階数 | 面積 | 賃料総額 | 坪単価 | 内装 | 敷金 | 入居日 | ||
|---|---|---|---|---|---|---|---|---|
| 5F A | 18.5坪(61.3㎡) | 要問合せ | - | セットアップオフィス | 相談 | 相談 | 詳細を見る |
敷金12ヶ月
オフィスビル外観1 / 7







敷金12ヶ月
磯村ビル
住所東京都港区虎ノ門1-1-2エリア新橋・虎ノ門・神谷町最寄り駅虎ノ門駅 徒歩1分、霞ケ関駅 徒歩4分空き区画1区画
オフィス物件詳細を見る →






虎ノ門駅徒歩1分、霞ケ関駅徒歩4分の虎ノ門1丁目に位置するオフィスビル。1991年竣工のRC造・地上9階地下2階建てで新耐震基準適合。基準階約124坪のフロアに天井高2,550mm・OAフロア・個別空調・男女別トイレ・エレベーター2基を完備し、駐車場も備えています。官公庁エリアに隣接する虎ノ門の一角で、法律事務所やコンサルティング企業にも好適な信頼感ある立地です。
| 階数 | 面積 | 賃料総額 | 坪単価 | 内装 | 敷金 | 入居日 | ||
|---|---|---|---|---|---|---|---|---|
| 4F | 124.0坪(410.0㎡) | 要問合せ | - | 事務所仕様 | 12ヶ月 | 2026/11 | 詳細を見る |
敷金12ヶ月
オフィスビル外観1 / 10










敷金12ヶ月
内幸町ダイビル
住所東京都千代田区内幸町1-3-3エリア大手町・丸の内・有楽町最寄り駅新橋駅 徒歩5分、新橋駅 徒歩6分空き区画1区画
オフィス物件詳細を見る →









新橋駅徒歩5分の内幸町1丁目に位置する地上9階・地下2階建てオフィスビル。OAフロア・個別空調・集中空調併用・男女別トイレ・エレベーター4基を完備した充実の設備仕様。約40坪のフロアは中規模オフィスに適した広さ。日比谷公園にも近い内幸町のビジネス街で、霞ケ関や銀座方面へのアクセスも良好です。
| 階数 | 面積 | 賃料総額 | 坪単価 | 内装 | 敷金 | 入居日 | ||
|---|---|---|---|---|---|---|---|---|
| 1F | 40.2坪(133.0㎡) | 要問合せ | - | 事務所仕様 | 12ヶ月 | 2026/07/01 | 詳細を見る |
敷金12ヶ月
オフィスビル外観1 / 10










敷金12ヶ月
TORANOMON BUILDING(虎ノ門ビル)
住所東京都港区虎ノ門1-1-12エリア新橋・虎ノ門・神谷町最寄り駅虎ノ門駅 徒歩1分、霞ケ関駅 徒歩3分空き区画1区画
オフィス物件詳細を見る →









虎ノ門駅徒歩1分、霞ケ関駅徒歩3分の虎ノ門1丁目に位置する地上10階・地下1階建てオフィスビル。基準階約108坪の大型フロアに個別空調・男女別トイレ・エレベーター2基を完備。虎ノ門交差点至近で、銀座線と丸ノ内線・日比谷線・千代田線の複数路線が徒歩圏内。官公庁エリアに隣接する虎ノ門の一等地で、法律事務所やコンサルティング企業にも最適です。
| 階数 | 面積 | 賃料総額 | 坪単価 | 内装 | 敷金 | 入居日 | ||
|---|---|---|---|---|---|---|---|---|
| 9F | 108.3坪(358.1㎡) | 要問合せ | - | 事務所仕様 | 12ヶ月 | 2026/05/29 | 詳細を見る |
28物件中 1〜20物件を表示