水道橋駅の敷金減額オフィス一覧
サイトに掲載できない非公開物件が多数ございます。
セットアップ・居抜き・敷金0円など、サイト未掲載の物件もご提案可能です。
検索結果 4 区画 募集中/登録374,683区画
敷金
6ヶ月0円
執務室1 / 31































敷金
6ヶ月0円
S-Glanz KUDAN BLD.
セットアップ有
住所東京都千代田区飯田橋2-1-5エリア飯田橋・九段下・神保町最寄り駅九段下駅 徒歩4分、神保町駅 徒歩7分空き区画2区画
オフィス物件詳細を見る →






























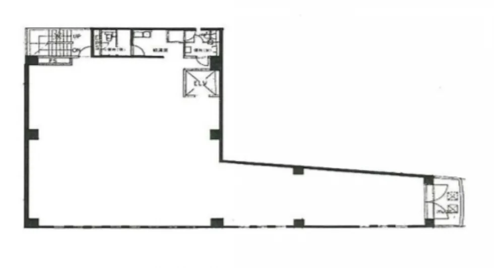
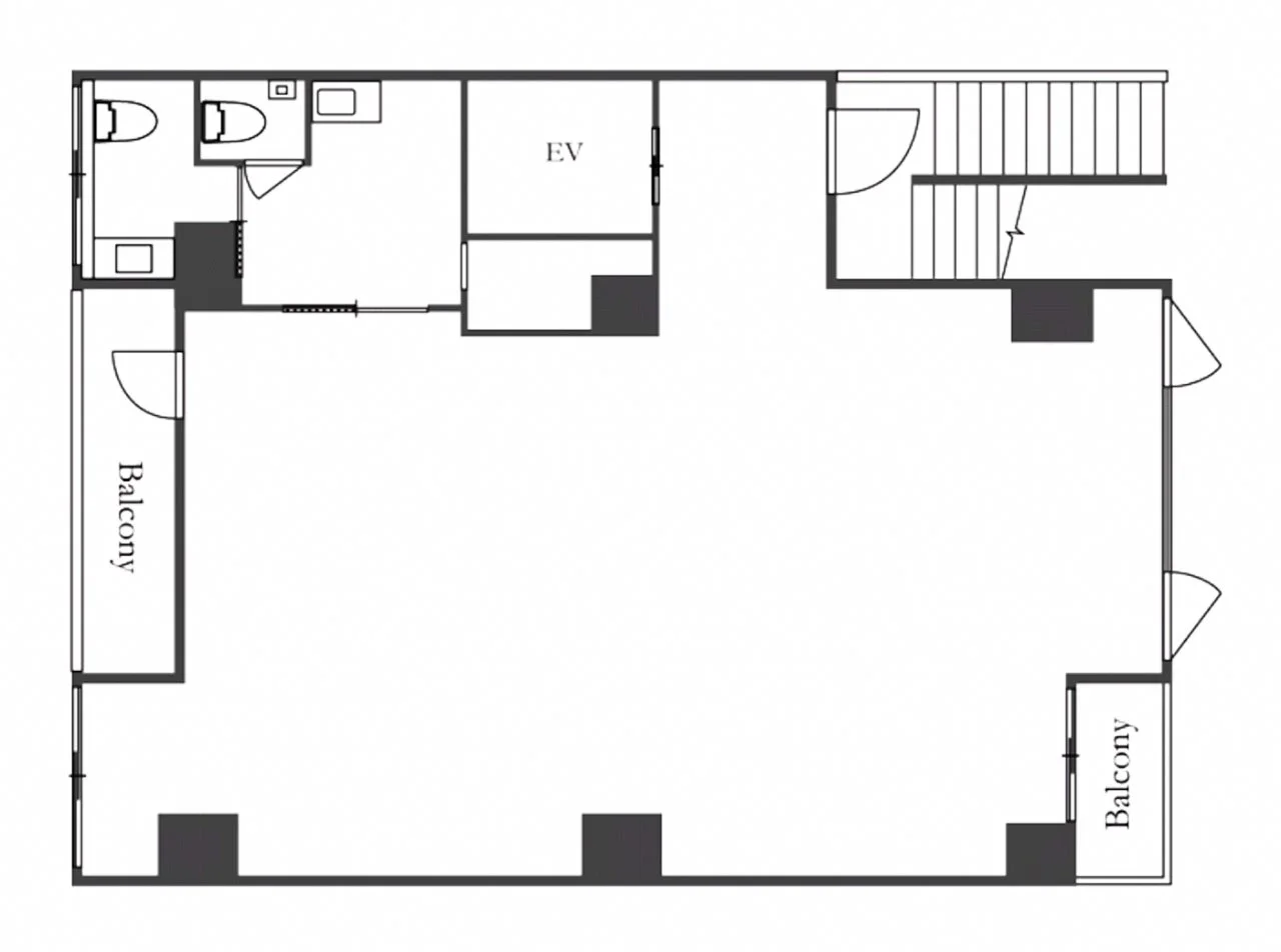
九段下駅徒歩4分、靖国通り沿いに建つ地上9階建てのセットアップオフィス。2018年にエントランスを全面リニューアルし、モダンな印象に生まれ変わりました。基準階約56坪のフロアは大きな窓から光が入る開放的な空間で、レセプション・会議室・リフレッシュスペースが設置済み。東西線・半蔵門線・都営新宿線の3路線が利用でき、飯田橋・神保町方面へのアクセスも良好です。敷金0円・内装付きオフィスのため、オフィス移転の初期費用を最小限に抑えられます。皇居や北の丸公園に近く、落ち着いたビジネス環境が整っています。
| 階数 | 面積 | 賃料総額 | 坪単価 | 内装 | 敷金 | 入居日 | ||
|---|---|---|---|---|---|---|---|---|
| 7F | 56.1坪(185.5㎡) | 1,403,000円 | 25,004円 | セットアップオフィス | 0円 | 相談 | 詳細を見る | |
| 8F | 56.1坪(185.5㎡) | 1,403,000円 | 25,004円 | セットアップオフィス | 0円 | 相談 | 詳細を見る |
敷金
0円
オフィスビル外観1 / 30






























敷金
0円
Gaia Force Building
セットアップ有
住所東京都千代田区神田三崎町2-21-6エリア神田・御茶ノ水最寄り駅水道橋駅 徒歩1分、神保町駅 徒歩8分空き区画2区画
オフィス物件詳細を見る →





























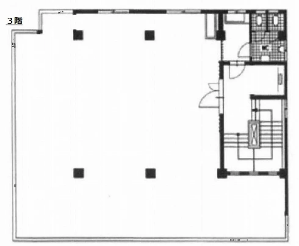
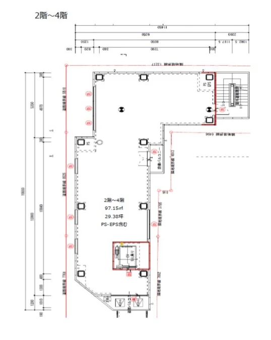
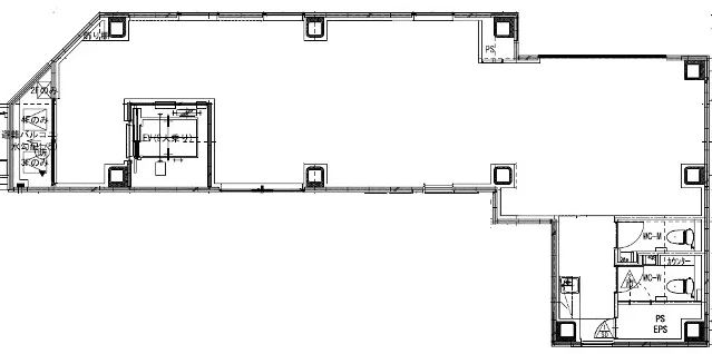
Gaia Force Buildingは、JR中央線・総武線「水道橋」駅東口から徒歩1分、都営三田線「水道橋」駅も徒歩3分で複数路線利用可能な好立地です。2023年1月竣工のRC造6階建てで、新耐震基準に適合。内装付きセットアップオフィスとして、OAフロア・男女別トイレ・専用テラスを完備し、機械警備で安心の執務環境を提供します。神田・御茶ノ水エリアは飲食店も豊富で利便性が高く、敷金0円相談可(保証会社利用)でコストを抑えたオフィス移転を実現します。
| 階数 | 面積 | 賃料総額 | 坪単価 | 内装 | 敷金 | 入居日 | ||
|---|---|---|---|---|---|---|---|---|
| 4F | 30.2坪(99.8㎡) | 785,200円 | 26,000円 | セットアップオフィス | 0円 | 2026/7上旬予定 | 詳細を見る | |
| 6F | 30.2坪(99.8㎡) | 845,600円 | 28,000円 | セットアップオフィス | 0円 | 2026/8中旬予定 | 詳細を見る |
2物件中 1〜2物件を表示