横浜駅の敷金減額オフィス一覧
サイトに掲載できない非公開物件が多数ございます。
セットアップ・居抜き・敷金0円など、サイト未掲載の物件もご提案可能です。
検索結果 6 区画 募集中/登録374,683区画
敷金
12ヶ月0円
オフィスビル外観1 / 5





敷金
12ヶ月0円
TSプラザビルディング
住所神奈川県横浜市神奈川区鶴屋町2-23-1エリア-最寄り駅横浜駅 徒歩3分空き区画1区画
オフィス物件詳細を見る →




| 階数 | 面積 | 賃料総額 | 坪単価 | 内装 | 敷金 | 入居日 | ||
|---|---|---|---|---|---|---|---|---|
| 9F | 76.6坪(253.1㎡) | 要問合せ | - | 事務所仕様 | 0円 | 2026/07/01 | 詳細を見る |
敷金
12ヶ月6ヶ月

1 / 49

















































敷金
12ヶ月6ヶ月
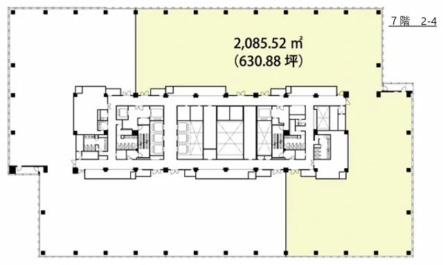
横浜コネクトスクエア(事務所区画)
住所神奈川県横浜市西区みなとみらい3-3-3エリア-最寄り駅みなとみらい駅 徒歩4分、高島町駅 徒歩6分空き区画5区画
オフィス物件詳細を見る →
















































| 階数 | 面積 | 賃料総額 | 坪単価 | 内装 | 敷金 | 入居日 | ||
|---|---|---|---|---|---|---|---|---|
| 7F | 630.9坪(2085.6㎡) | 要問合せ | - | 事務所仕様 | 6ヶ月 | 即日 | 詳細を見る | |
| 7F | 182.5坪(603.2㎡) | 要問合せ | - | 事務所仕様 | 6ヶ月 | 相談 | 詳細を見る | |
| 15F | 1256.0坪(4152.0㎡) | 要問合せ | - | 事務所仕様 | 6ヶ月 | 即日 | 詳細を見る | |
| 16F | 1256.0坪(4152.0㎡) | 要問合せ | - | 事務所仕様 | 6ヶ月 | 即日 | 詳細を見る | |
| 17F | 1256.0坪(4152.0㎡) | 要問合せ | - | 事務所仕様 | 6ヶ月 | 即日 | 詳細を見る |
2物件中 1〜2物件を表示