
| 階数 | 17 | 内装 | 事務所仕様 |
|---|---|---|---|
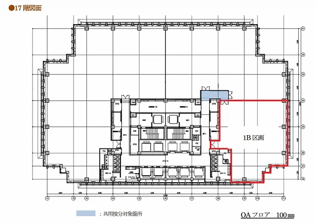
| 面積(坪) | 91.29坪 | 面積(㎡) | 301.79㎡ |
| 賃料 | 要問い合わせ | 坪単価 | 要問い合わせ |
| 敷金/保証金 | 12ヶ月6ヶ月 | 礼金 | - |
| 入居可能日 | - | 募集状況 | 空室 |
| 収容人数 | - | 会議室 | - |
| テレブース | - | 機械警備 | - |
| 天井高 | 2800 | 床仕様 | OAフロア |
| トイレ | 共用男女別 | 空調 | セントラル |
| 物件名 | 赤坂ガーデンシティ | ||
|---|---|---|---|
| 所在地 | 東京都港区赤坂4-15-1 | ||
| 最寄駅 | 赤坂見附駅 徒歩6分 / 赤坂駅 徒歩7分 / 乃木坂駅 徒歩10分 | ||
| 構造 | - | 規模 | 地下2階地上19階建 |
| 竣工 | 2006 | リニューアル | - |