





オフィスビル外観1 / 7
新橋アネックス
B2
| 面積 | 24.5坪(81.3㎡) |
|---|---|
| 賃料 | 要問い合わせ |
| 坪単価 | 要問い合わせ |
| 敷金 | 相談 |
| 内装 | 事務所仕様 |
| 入居可能日 | - |
※敷金減額サービスをご利用時は、賃料の 4〜8%(与信審査により変動)の保証料が年間で別途発生します。
物件ページに戻る区画詳細情報
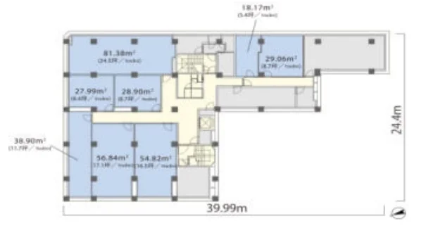
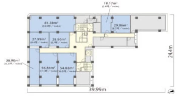
面積・間取り
| 階数 | B2 | 内装 | 事務所仕様 |
|---|---|---|---|
| 面積(坪) | 24.50坪 | 面積(㎡) | 81.31㎡ |
| 天井高 | - | 床仕様 | OAフロア |
| 収容人数 | - | 会議室 | - |
賃料・契約条件
| 賃料 | 要問い合わせ | 坪単価 | 要問い合わせ |
|---|---|---|---|
| 敷金/保証金 | 相談 | 礼金 | なし |
| 入居可能日 | - | 募集状況 | 空室 |
設備・仕様
| テレブース | - | 機械警備 | - |
|---|---|---|---|
| トイレ | 男女トイレ別 | 空調 | - |
物件情報
アクセス・所在地
| 物件名 | 新橋アネックス | ||
|---|---|---|---|
| 所在地 | 東京都港区新橋5-35-10 | ||
| 最寄駅 | 御成門駅 徒歩4分 / 新橋駅 徒歩10分 / 新橋駅 徒歩9分 | ||
建物概要
| 構造 | - | 規模 | 地上5階 / 地下2階 |
|---|---|---|---|
| 竣工 | 1975年 | リニューアル | - |
同じ物件の他の区画17件
Growth Office
1
事務所仕様23.6坪要問合せGrowth Office
1
事務所仕様12.5坪要問合せGrowth Office
1
事務所仕様17.8坪要問合せGrowth Office
2
事務所仕様10.6坪要問合せGrowth Office
2
事務所仕様24.5坪要問合せGrowth Office
2
事務所仕様8.4坪要問合せGrowth Office
2
事務所仕様8.7坪要問合せGrowth Office
2
事務所仕様17.1坪要問合せGrowth Office
2
事務所仕様5.4坪要問合せ
B1
事務所仕様17.8坪要問合せ
B1
事務所仕様23.6坪要問合せ
B1
事務所仕様12.5坪要問合せ
B2
事務所仕様5.4坪要問合せ
B2
事務所仕様10.6坪要問合せ
B2
事務所仕様8.7坪要問合せ
B2
事務所仕様17.1坪要問合せ