





オフィスビル外観1 / 7
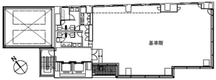
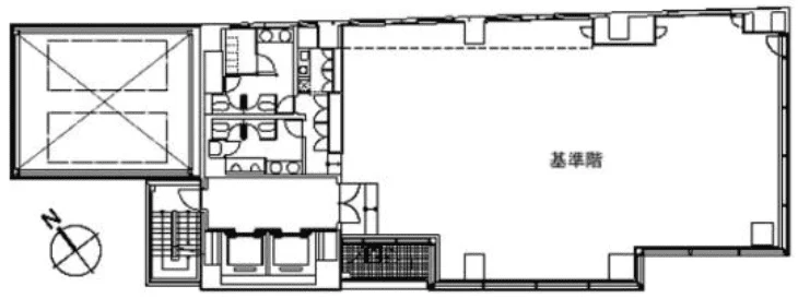
区画詳細情報
| 階数 | 6 | 内装 | 事務所仕様 |
|---|---|---|---|
| 面積(坪) | 58.00坪 | 面積(㎡) | 191.74㎡ |
| 賃料 | 要問い合わせ | 坪単価 | 要問い合わせ |
| 敷金/保証金 | 10ヶ月 | 礼金 | なし |
| 入居可能日 | - | 募集状況 | 空室 |
| 収容人数 | - | 会議室 | - |
| テレブース | - | 機械警備 | - |
| 天井高 | - | 床仕様 | OAフロア |
| トイレ | 男女トイレ別 | 空調 | - |
物件情報
| 物件名 | FORUM赤坂(フォーラム赤坂) | ||
|---|---|---|---|
| 所在地 | 東京都港区赤坂2-19-4 | ||
| 最寄駅 | 溜池山王駅 徒歩3分 / 六本木一丁目駅 徒歩5分 / 赤坂駅 徒歩8分 | ||
| 構造 | - | 規模 | 地上11階 / 地下1階 |
| 竣工 | 1991年 | リニューアル | - |

