























1 / 24
敷金
12ヶ月6ヶ月
クオーツ心斎橋
| 住所 | 大阪府大阪市中央区南船場3-8-4 |
|---|---|
| 最寄駅 | 心斎橋駅 徒歩4分 本町駅 徒歩7分 堺筋本町駅 徒歩8分 |
| 竣工年 | 2026年 |
| 構造・規模 | 鉄骨造 / 地上28階 / 地下2階 |
#敷金減額
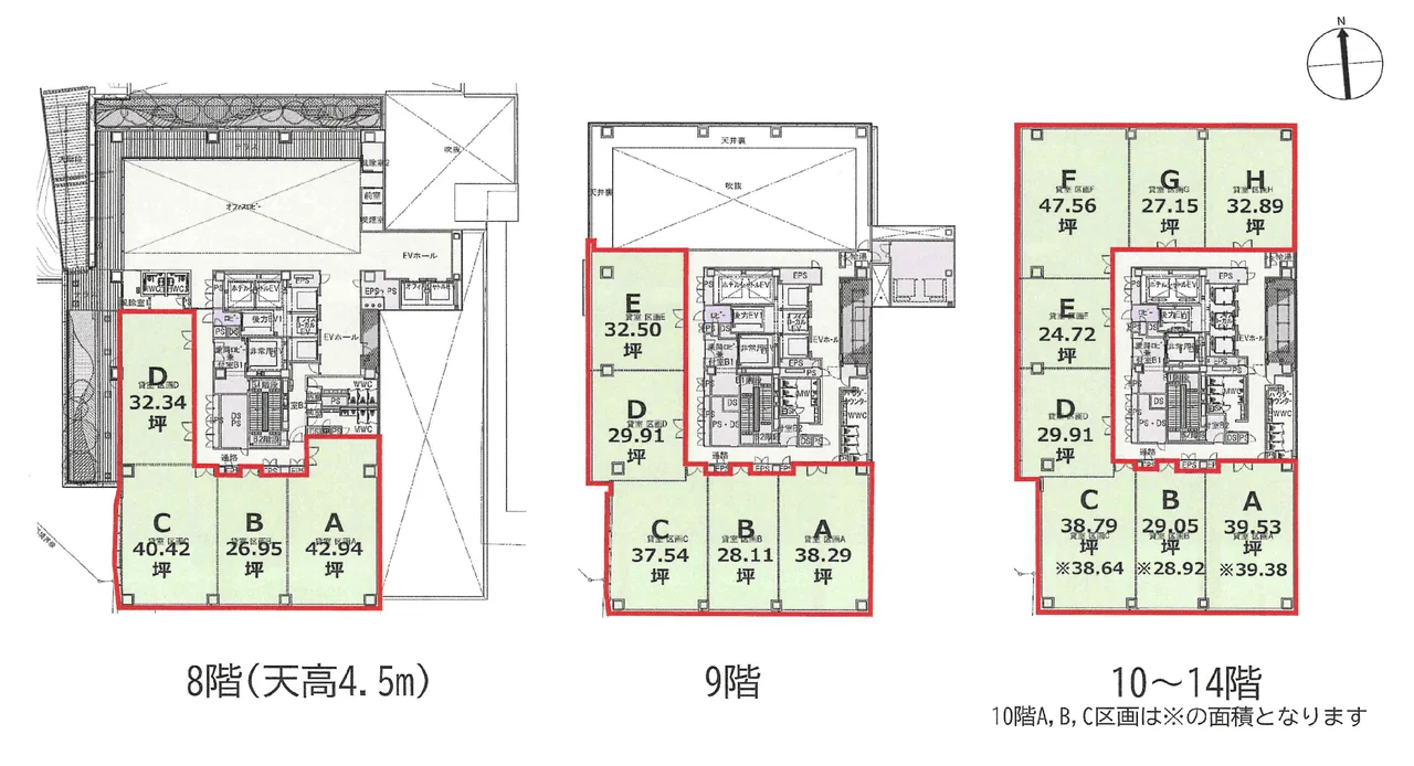
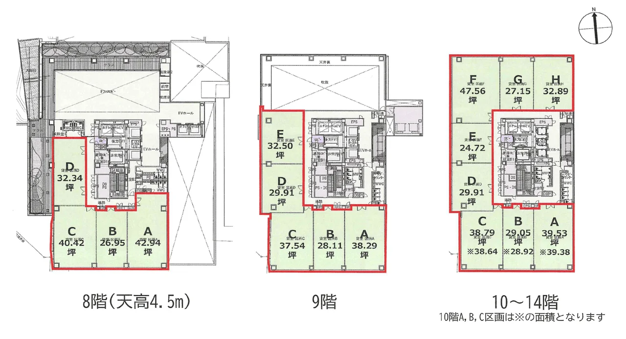
募集区画
最終更新日:2026年4月14日
| 階数 | 内装 | 面積 | 賃料 | 共益費 | 敷金 | 入居可能日 | ||
|---|---|---|---|---|---|---|---|---|
| 詳細を見る | 11階 | 内装事務所仕様 | 107.39坪 (355.01㎡) | 賃料要問合せ | 共益費相談 | 敷金相談 | 入居可能日相談 | |
| 詳細を見る | 12階 | 内装事務所仕様 | 107.37坪 (354.94㎡) | 賃料要問合せ | 共益費相談 | 敷金12ヶ月 → 6ヶ月 | 入居可能日2026年2月 |
※敷金減額サービスをご利用時はサービス利用料として減額分の5%が年間で別途発生します。
