募集区画
最終更新日:2026年4月27日
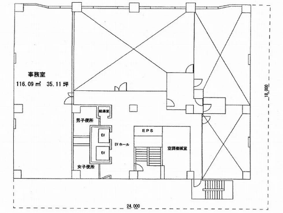
| 階数 | 内装 | 面積 | 賃料 | 共益費 | 敷金 | 入居可能日 | ||
|---|---|---|---|---|---|---|---|---|
| 詳細を見る | 10階 | 内装事務所仕様 | 35.11坪 (116.05㎡) | 賃料要問合せ | 共益費相談 | 敷金相談 | 入居可能日相談 |
※敷金減額サービスをご利用時はサービス利用料として減額分の5%が年間で別途発生します。
物件所在地
エリア紹介
新宿・西新宿エリアは、日本を代表する超高層ビル群が林立する、まさにビジネスの中心地です。東京都庁をはじめ、200mを超える高層ビルが十数棟も立ち並び、圧倒的な存在感を放っています。このエリアの最大の魅力は、その卓越した交通アクセスです。JR各線、東京メトロ丸ノ内線、都営大江戸線、新宿線、京王線、小田急線など、実に多様な路線が乗り入れる巨大ターミナル駅である新宿駅を擁し、都内各所はもちろん、神奈川県や埼玉県といった近郊エリアからのアクセスも非常に便利です。 東京西部の広大な住宅地を後背に控えているためビジネス需要は常に高く、多様な企業が集積しています。特に、IT、金融、コンサルティングなど、高度な専門知識を必要とする企業が多く、活気あふれるビジネスシーンが展開されています。近年では、スタートアップ企業向けの**セットアップオフィス**も増加傾向にあり、新しいビジネスの創出を後押ししています。 **賃貸オフィス**の賃料水準は、都内でも高めのエリアとして知られていますが、その利便性と集積効果から、**オフィス移転**先として検討する企業は後を絶ちません。近年の傾向としては、企業規模や働き方の多様化に対応するため、様々な規模やグレードの**貸事務所**が登場しており、企業のニーズに合わせたオフィス選びが可能になっています。また、新宿駅周辺は、常に人が行き交う賑やかな雰囲気ですが、少し離れた西新宿エリアは、比較的落ち着いた環境でビジネスに集中できるという魅力もあります。このように、新宿・西新宿エリアは、ビジネスの成長を力強くサポートする、他に類を見ないポテンシャルを秘めたエリアと言えるでしょう。







