西新宿駅の賃貸オフィス・貸事務所一覧
検索結果 72 件 募集中/登録179,760件
オフィスビル外観

































Polar西新宿
西新宿駅から徒歩5分、新宿駅も利用圏内のセットアップオフィスです。2023年に外壁・エントランス・エレベーターのフルリノベーションを実施し、築年数を感じさせないモダンな外観に一新されました。57.56坪のゆとりある内装付きオフィスで、男女別トイレ・OAフロア・個別空調を備えています。敷金0円のため、オフィス移転にかかるイニシャルコストを最小限に抑えたい企業に適しています。大通りから一歩入った静かな立地も特長です。
| 階数 | 面積 | 賃料総額 | 坪単価 | 内装 | 敷金 | 入居日 | ||
|---|---|---|---|---|---|---|---|---|
| 2F | 57.6坪(190.3㎡) | 要問合せ | - | セットアップオフィス | 0円 | 相談 | 詳細を見る |
オフィスビル外観





























CIRCLES西新宿
三菱地所が手がける2022年竣工の大型オフィスビル。都庁前駅徒歩6分、新宿駅も徒歩圏内の好アクセスです。123.21坪の広々としたフロアは全階にインナーバルコニーを設け、スケルトン天井で開放的な空間を演出。1階にはラウンジスペースとテレカンブースを設置し、屋上テラスからは新宿の街並みが一望できます。ICカード二段階認証のセキュリティも万全。敷金0円の内装付きセットアップオフィスで、大規模なオフィス移転に対応します。
| 階数 | 面積 | 賃料総額 | 坪単価 | 内装 | 敷金 | 入居日 | ||
|---|---|---|---|---|---|---|---|---|
| 2F | 123.2坪(407.3㎡) | 要問合せ | - | セットアップオフィス | 3ヶ月 | 相談 | 詳細を見る | |
| 4F | 123.2坪(407.3㎡) | 要問合せ | - | セットアップオフィス | 3ヶ月 | 相談 | 詳細を見る | |
| 6F | 123.2坪(407.3㎡) | 要問合せ | - | セットアップオフィス | 3ヶ月 | 相談 | 詳細を見る | |
| 7F | 123.2坪(407.3㎡) | 要問合せ | - | セットアップオフィス | 3ヶ月 | 相談 | 詳細を見る | |
| 10F | 123.2坪(407.3㎡) | 要問合せ | - | セットアップオフィス | 3ヶ月 | 相談 | 詳細を見る |
オフィスビル外観



















































































西新宿BUSINESS CUBE
2022年竣工の新築オフィスビルで、新宿西口駅から徒歩4分、5路線5駅が利用可能です。基準階約105坪の無柱フロアはレイアウトの自由度が高く、天井高2,800mmの開放的な空間が広がります。非接触カードキーによるセキュリティ、個別空調、機械換気システムに加え、網戸付き窓3箇所で自然換気にも対応。Wi-Fi完備のルーフガーデンやオープンパントリーなど、社員のコミュニケーションを促す共用施設も充実しています。非常用発電機も備え、BCP対策にも配慮した内装付きオフィスです。
| 階数 | 面積 | 賃料総額 | 坪単価 | 内装 | 敷金 | 入居日 | ||
|---|---|---|---|---|---|---|---|---|
| 3F | 105.2坪(347.7㎡) | 要問合せ | - | セットアップオフィス | 3ヶ月 | 相談 | 詳細を見る |
オフィスビル外観





新宿野村ビル
西新宿駅駅徒歩4分、都庁前駅駅徒歩3分に位置するの地上50階 / 地下5階建てオフィスビル。エレベーター24基を完備。基準階約391.99坪の超大型フロアが特徴。
| 階数 | 面積 | 賃料総額 | 坪単価 | 内装 | 敷金 | 入居日 | ||
|---|---|---|---|---|---|---|---|---|
| 5F | 58.3坪(192.8㎡) | 要問合せ | - | 事務所仕様 | 12ヶ月 | 相談 | 詳細を見る | |
| 9F | 173.1坪(572.3㎡) | 要問合せ | - | 事務所仕様 | 12ヶ月 | 2027/09/01 | 詳細を見る | |
| 9F | 72.6坪(239.9㎡) | 要問合せ | - | 事務所仕様 | 12ヶ月 | 2027/09/01 | 詳細を見る | |
| 26F | 36.2坪(119.8㎡) | 要問合せ | - | 事務所仕様 | 12ヶ月 | 2026/05/01 | 詳細を見る | |
| 26F | 45.3坪(149.8㎡) | 要問合せ | - | 事務所仕様 | 12ヶ月 | 2026/04/01 | 詳細を見る | |
| 34F | 381.9坪(1262.3㎡) | 要問合せ | - | 事務所仕様 | 12ヶ月 | 2027/05/01 | 詳細を見る | |
| 38F | 392.0坪(1295.8㎡) | 要問合せ | - | 事務所仕様 | 12ヶ月 | 2026/04/01 | 詳細を見る | |
| 48F | 13.7坪(45.2㎡) | 要問合せ | - | 事務所仕様 | 12ヶ月 | 相談 | 詳細を見る |
オフィスビル外観






















エアシー⻄新宿(Air.C⻄新宿)
西武新宿駅徒歩5分、大久保駅徒歩4分の西新宿7丁目に位置する地上10階建てオフィスビル。エレベーター1基を完備。約15坪のフロアは少人数事務所に適した広さ。新宿駅にも近い北新宿エリアです。
| 階数 | 面積 | 賃料総額 | 坪単価 | 内装 | 敷金 | 入居日 | ||
|---|---|---|---|---|---|---|---|---|
| 3F | 14.5坪(47.9㎡) | 要問合せ | - | 事務所仕様 | 6ヶ月 | 相談 | 詳細を見る | |
| 4F | 14.5坪(47.9㎡) | 要問合せ | - | 事務所仕様 | 6ヶ月 | 相談 | 詳細を見る | |
| 5F | 14.5坪(47.9㎡) | 要問合せ | - | 事務所仕様 | 6ヶ月 | 相談 | 詳細を見る | |
| 6F | 14.5坪(47.9㎡) | 要問合せ | - | 事務所仕様 | 6ヶ月 | 相談 | 詳細を見る | |
| 7F | 14.5坪(47.9㎡) | 要問合せ | - | 事務所仕様 | 6ヶ月 | 相談 | 詳細を見る | |
| 8F | 14.5坪(47.9㎡) | 要問合せ | - | 事務所仕様 | 6ヶ月 | 相談 | 詳細を見る | |
| 9F | 14.5坪(47.9㎡) | 要問合せ | - | 事務所仕様 | 6ヶ月 | 相談 | 詳細を見る | |
| 10F | 14.5坪(47.9㎡) | 要問合せ | - | 事務所仕様 | 6ヶ月 | 相談 | 詳細を見る |
オフィスビル外観






新宿三井ビルディング
都庁前駅駅徒歩2分、西新宿駅駅徒歩4分に位置するの地上55階 / 地下3階建てオフィスビル。エレベーター33基を完備。基準階約254.05坪の超大型フロアが特徴。
| 階数 | 面積 | 賃料総額 | 坪単価 | 内装 | 敷金 | 入居日 | ||
|---|---|---|---|---|---|---|---|---|
| 49F 05 | 99.9坪(330.2㎡) | 要問合せ | - | 事務所仕様 | 相談 | 2027-04-01T00:00:00.000Z | 詳細を見る | |
| 51F 12 | 31.1坪(103.0㎡) | 要問合せ | - | 事務所仕様 | 相談 | 2027-06-01T00:00:00.000Z | 詳細を見る | |
| 51F 09 | 31.1坪(103.0㎡) | 要問合せ | - | 事務所仕様 | 相談 | 2027-06-01T00:00:00.000Z | 詳細を見る | |
| 51F 05 | 254.1坪(839.9㎡) | 要問合せ | - | 事務所仕様 | 相談 | 2027-06-01T00:00:00.000Z | 詳細を見る | |
| 51F 01 | 254.1坪(839.9㎡) | 要問合せ | - | 事務所仕様 | 相談 | 2027-06-01T00:00:00.000Z | 詳細を見る |
オフィスビル外観










西新宿三井ビルディング
西新宿駅駅徒歩4分、都庁前駅駅徒歩10分に位置するの地下2階地上27階建てオフィスビル。エレベーター7基を完備。基準階約238.4坪の超大型フロアが特徴。
| 階数 | 面積 | 賃料総額 | 坪単価 | 内装 | 敷金 | 入居日 | ||
|---|---|---|---|---|---|---|---|---|
| 19F 05 | 238.4坪(788.1㎡) | 要問合せ | - | 事務所仕様 | 12ヶ月 | 2026-06-01T00:00:00.000Z | 詳細を見る | |
| 19F 09 | 21.0坪(69.5㎡) | 要問合せ | - | 事務所仕様 | 12ヶ月 | 2026-06-01T00:00:00.000Z | 詳細を見る | |
| 21F 04 | 53.9坪(178.1㎡) | 要問合せ | - | 事務所仕様 | 12ヶ月 | 2026-10-01T00:00:00.000Z | 詳細を見る |
オフィスビル外観




新宿グリーンタワー
都庁前駅駅徒歩5分、西新宿駅駅徒歩5分に位置するの地上29階 / 地下4階建てオフィスビル。エレベーター10基を完備。基準階約154.33坪の大型フロアが特徴。
| 階数 | 面積 | 賃料総額 | 坪単価 | 内装 | 敷金 | 入居日 | ||
|---|---|---|---|---|---|---|---|---|
| 10F | 154.3坪(510.2㎡) | 要問合せ | - | 事務所仕様 | 12ヶ月 | 2026/04/01 | 詳細を見る | |
| 17F | 154.3坪(510.2㎡) | 要問合せ | - | 事務所仕様 | 12ヶ月 | 2026/04/01 | 詳細を見る | |
| 24F | 101.8坪(336.6㎡) | 要問合せ | - | 事務所仕様 | 12ヶ月 | 相談 | 詳細を見る |
オフィスビル外観







新宿国際ビルディング
西新宿駅徒歩4分、都庁前駅徒歩5分の西新宿6丁目に位置する地上38階・地下4階建ての超高層オフィスタワー。エレベーター4基を完備。基準階約161坪のフロアが特徴。ヒルトン東京隣接の新宿国際ビルシリーズです。
| 階数 | 面積 | 賃料総額 | 坪単価 | 内装 | 敷金 | 入居日 | ||
|---|---|---|---|---|---|---|---|---|
| 5F | 126.9坪(419.4㎡) | 要問合せ | - | 事務所仕様 | 12ヶ月 | 相談 | 詳細を見る | |
| 5F | 160.8坪(531.5㎡) | 要問合せ | - | 事務所仕様 | 12ヶ月 | 相談 | 詳細を見る |
オフィスビル外観








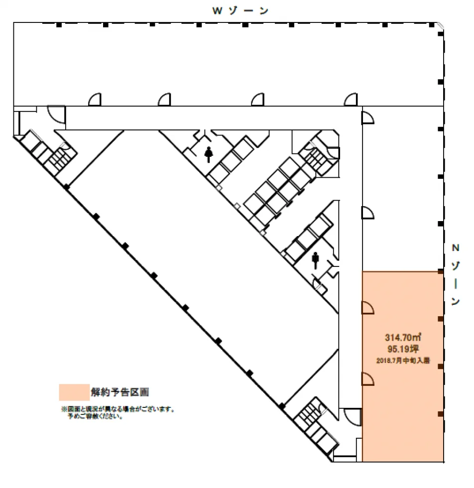
新宿第一生命ビル
都庁前駅駅徒歩2分、西新宿駅駅徒歩5分に位置するの地上26階 / 地下4階建てオフィスビル。エレベーター14基を完備。基準階約95.2坪の大型フロアが特徴。
| 階数 | 面積 | 賃料総額 | 坪単価 | 内装 | 敷金 | 入居日 | ||
|---|---|---|---|---|---|---|---|---|
| 10F | 95.2坪(314.7㎡) | 要問合せ | - | 事務所仕様 | 12ヶ月 | 2026/09/01 | 詳細を見る |
オフィスビル外観











Dタワー西新宿
西新宿駅徒歩4分、都庁前駅徒歩5分の西新宿6丁目に位置する地上29階・地下2階建ての超高層オフィスタワー。エレベーター7基を完備。基準階約307坪の大空間フロアが特徴。NTTデータが手がける西新宿エリアのランドマークビルです。
| 階数 | 面積 | 賃料総額 | 坪単価 | 内装 | 敷金 | 入居日 | ||
|---|---|---|---|---|---|---|---|---|
| 6F | 101.9坪(336.9㎡) | 要問合せ | - | 事務所仕様 | 12ヶ月 | 2026/05/01 | 詳細を見る | |
| 7F | 307.2坪(1015.5㎡) | 要問合せ | - | 事務所仕様 | 12ヶ月 | 2026/05/01 | 詳細を見る |
オフィスビル外観








成子坂ハイツ
西新宿駅駅徒歩4分、中野坂上駅駅徒歩9分に位置するの地上11階建てオフィスビル。エレベーター1基を完備。約15.37坪のフロアは少人数から中規模オフィスに対応可能。
| 階数 | 面積 | 賃料総額 | 坪単価 | 内装 | 敷金 | 入居日 | ||
|---|---|---|---|---|---|---|---|---|
| 10F | 15.4坪(50.8㎡) | 要問合せ | - | 事務所仕様 | 5ヶ月 | 相談 | 詳細を見る | |
| 11F | 15.1坪(50.0㎡) | 要問合せ | - | 事務所仕様 | 5ヶ月 | 相談 | 詳細を見る |
オフィスビル外観








新宿国際ビルディング新館
西新宿駅徒歩5分、都庁前駅徒歩5分。ヒルトン東京に併設された地上10階・地下2階建てのオフィスビルです。1985年竣工、基準階約197坪の大型フロアにOAフロア・セントラル空調・男女別トイレ・エレベーター4基を完備。地下には飲食街「ヒルトピア」があり、24時間防災センター常駐の高いセキュリティも特徴。西新宿の高層ビル街で格式あるオフィス運営を実現します。
| 階数 | 面積 | 賃料総額 | 坪単価 | 内装 | 敷金 | 入居日 | ||
|---|---|---|---|---|---|---|---|---|
| 5F | 34.9坪(115.3㎡) | 要問合せ | - | 事務所仕様 | 相談 | 2026/07/01 | 詳細を見る |
オフィスビル外観









新宿フロントタワー
西新宿駅徒歩4分、中野坂上駅徒歩8分の北新宿2丁目に位置する地上34階・地下2階建ての超高層オフィスタワー。基準階約523坪の大空間フロアにOAフロア・集中空調・男女別トイレ・エレベーター18基を完備。新宿副都心エリアのランドマークビルで、大規模なオフィス移転に対応可能です。
| 階数 | 面積 | 賃料総額 | 坪単価 | 内装 | 敷金 | 入居日 | ||
|---|---|---|---|---|---|---|---|---|
| 17F | 523.2坪(1729.6㎡) | 要問合せ | - | 事務所仕様 | 相談 | 2026/11/01 | 詳細を見る |
オフィスビル外観





西新宿三晃ビル
西新宿駅徒歩7分、西武新宿駅徒歩5分の西新宿7丁目に位置する地上4階・地下1階建てオフィスビル。エレベーター2基を完備。基準階約124坪のフロアはワンフロア利用に最適。新宿駅周辺で大面積を確保したい企業向けです。
| 階数 | 面積 | 賃料総額 | 坪単価 | 内装 | 敷金 | 入居日 | ||
|---|---|---|---|---|---|---|---|---|
| 4F | 123.5坪(408.3㎡) | 要問合せ | - | 事務所仕様 | 12ヶ月 | 相談 | 詳細を見る |
オフィスビル外観







新宿アイランドタワー
西新宿駅駅徒歩1分、都庁前駅駅徒歩5分に位置するの地上44階 / 地下4階建てオフィスビル。エレベーター30基を完備。約38.25坪のフロアは中規模オフィスに適した広さ。
| 階数 | 面積 | 賃料総額 | 坪単価 | 内装 | 敷金 | 入居日 | ||
|---|---|---|---|---|---|---|---|---|
| 6F | 38.3坪(126.5㎡) | 要問合せ | - | 事務所仕様 | 12ヶ月 | 2026-11-01T00:00:00.000Z | 詳細を見る |
オフィスビル外観









野村不動産西新宿ビル
西新宿駅駅徒歩1分、都庁前駅駅徒歩8分に位置するの地上9階 / 地下1階建てオフィスビル。エレベーター2基を完備。基準階約145.54坪の大型フロアが特徴。
| 階数 | 面積 | 賃料総額 | 坪単価 | 内装 | 敷金 | 入居日 | ||
|---|---|---|---|---|---|---|---|---|
| 5F | 145.5坪(481.1㎡) | 要問合せ | - | 事務所仕様 | 12ヶ月 | 2026/05/01 | 詳細を見る |
オフィスビル外観





カーメルⅠ(CARMELⅠ)
西新宿駅駅徒歩4分、大久保駅駅徒歩9分に位置するの地上5階建てオフィスビル。エレベーター1基を完備。約19.85坪のフロアは少人数から中規模オフィスに対応可能。敷金3ヶ月で入居可能。
| 階数 | 面積 | 賃料総額 | 坪単価 | 内装 | 敷金 | 入居日 | ||
|---|---|---|---|---|---|---|---|---|
| 3F | 19.9坪(65.6㎡) | 要問合せ | - | 事務所仕様 | 3ヶ月 | 相談 | 詳細を見る |
50物件中 1〜20物件を表示