



オフィスビル外観1 / 5
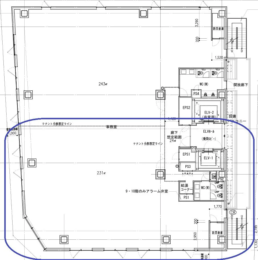
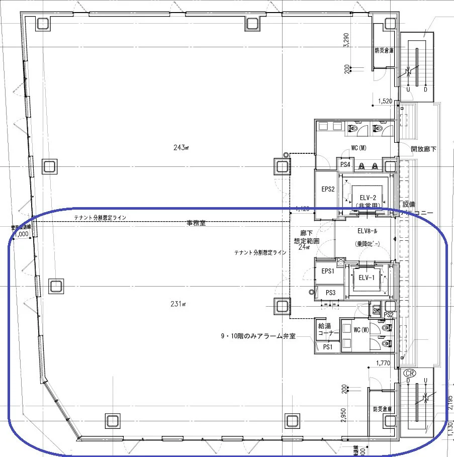
区画詳細情報
| 階数 | 3 | 内装 | セットアップオフィス |
|---|---|---|---|
| 面積(坪) | 74.98坪 | 面積(㎡) | 247.87㎡ |
| 賃料 | 要問い合わせ | 坪単価 | 要問い合わせ |
| 敷金/保証金 | 12ヶ月 | 礼金 | なし |
| 入居可能日 | - | 募集状況 | 空室 |
| 収容人数 | - | 会議室 | - |
| テレブース | - | 機械警備 | - |
| 天井高 | - | 床仕様 | OAフロア |
| トイレ | 男女トイレ別 | 空調 | - |
物件情報
| 物件名 | CIRCLES +築地 | ||
|---|---|---|---|
| 所在地 | 東京都中央区築地1-10 | ||
| 最寄駅 | 築地駅 徒歩2分 / 東銀座駅 徒歩4分 / 新富町駅 徒歩4分 | ||
| 構造 | - | 規模 | 地上10階 |
| 竣工 | 2026年 | リニューアル | - |









